Menu

Filter op
content
PONT Zorg&Sociaal

0

ECLI:NL:RBOBR:2023:24

5 January 2023

Jurisprudentie – Uitspraken

Uitspraak

vonnis

RECHTBANK OOST-BRABANT

Civiel Recht

Zittingsplaats 's-Hertogenbosch

zaaknummer / rolnummer: C/01/366495 / HA ZA 21-13

Vonnis van 4 januari 2023

in de zaak van

de besloten vennootschap met beperkte aansprakelijkheid

[eiseres] B.V.,

gevestigd te [vestigingsplaats] ,

eiseres in conventie,

verweerster in reconventie,

advocaat mr. M.F. Breedveld te Breda,

tegen

[ gedaagde sub 1] ,

2. [gedaagde sub 2],

beiden wonend te [woonplaats] ,

gedaagden in conventie,

eisers in reconventie,

advocaat mr. J.A.M. Smeekens te Breda.

Partijen zullen hierna [eiseres] (vrouwelijk, enkelvoud) en [gedaagden] (mannelijk, enkelvoud) genoemd worden.

Inleiding

1.1. [eiseres] heeft in opdracht van [gedaagden] een nieuwbouwwoning gebouwd en opgeleverd. Een groot gedeelte van de aanneemsom is voldaan. In conventie vordert [eiseres] betaling van openstaande facturen voor een totaal van € 53.181,62. [gedaagden] betwist de facturen verschuldigd te zijn om diverse redenen. Hij stelt (ook) een tegenvordering te hebben van € 27.073,25 (voor zover verrekening niet is toegestaan), omdat er volgens hem sprake is van minderwerk. Ook vordert [gedaagden] [eiseres] te veroordelen bepaalde werkzaamheden te verrichten.

1.2.De rechtbank is van oordeel dat al met al [eiseres] nog € 1.814,96 in hoofdsom moet betalen. Ook moet zij nog bepaalde werkzaamheden verrichten, waaronder het aanpassen van de draairichting van een harmonicadeur.

1.3.Hieronder licht de rechtbank toe hoe zij tot haar oordeel is gekomen.

De procedure

2.1.Op 25 november 2021 heeft een mondelinge behandeling in deze zaak plaatsgevonden. Daarvan is een proces-verbaal opgemaakt. In dat proces-verbaal zijn de stukken beschreven die tot dan toe waren ontvangen door de rechtbank. Na afloop van de mondelinge behandeling heeft de rechtbank bepaald dat in conventie [eiseres] een conclusie van repliek en [gedaagden] een conclusie van dupliek mochten nemen en dat in reconventie [gedaagden] een conclusie van repliek en [eiseres] een conclusie van dupliek mocht nemen. Na afloop van de mondelinge behandeling zijn de volgende stukken ontvangen:

  • Een brief van [eiseres] met opmerkingen op het proces-verbaal,

  • Een brief van [gedaagden] met opmerkingen op het proces-verbaal,

  • Een conclusie van repliek in conventie van [eiseres] ,

  • Een conclusie van repliek in reconventie van [gedaagden] ,

  • Een akte overlegging producties in reconventie, tevens conclusie van dupliek in conventie, van [gedaagden] ,

  • Een akte uitlating producties in conventie van [eiseres] ,

  • Een conclusie van dupliek in reconventie van [eiseres] .

2.2.Vervolgens heeft de rechtbank bepaald dat vonnis zal worden gewezen. In verband met de vele geschilpunten in deze zaak heeft het schrijven van dit vonnis langer geduurd dan destijds ingeschat.

De feiten

3.1.Op of omstreeks 17 september 2016 is tussen [gedaagden] als opdrachtgever en [eiseres] als aannemer een aanneemovereenkomst tot stand gekomen. [eiseres] heeft zich met deze overeenkomst verbonden tot het bouwen en opleveren van een nieuwbouwwoning in [woonplaats] .

3.2.In oktober 2016 is [eiseres] begonnen met de werkzaamheden.

3.3. [eiseres] heeft diverse facturen gestuurd voor de werkzaamheden. In totaal heeft [gedaagden] voor circa € 660.000,- aan facturen van [eiseres] voldaan. [gedaagden] heeft ook een aantal door [eiseres] gestuurde facturen onbetaald gelaten.

3.4.Op 13 december 2017 hebben partijen het werk opgenomen. [gedaagden] heeft aansluitend daarop de woning in gebruik genomen.

3.5.Partijen hebben hierna elkaar gesproken en met elkaar gecorrespondeerd over diverse opleverpunten, onder andere per e-mail van 19 december 2017. Partijen hebben ook gesproken / gecorrespondeerd over betaling van facturen. [eiseres] heeft ook na 19 december 2017 (herstel)werkzaamheden verricht.

3.6.Omdat partijen niet over alle (gestelde) opleverpunten en openstaande facturen overeenstemming hebben bereikt, hebben zij gemachtigden in de arm genomen en hebben zij elkaar ‘formele’ brieven gestuurd. Zo heeft [gedaagden] [eiseres] een brief van 28 november 2018 gestuurd, waarin hij uitgebreid heeft toegelicht op welke punten hij meende dat [eiseres] was tekortgeschoten en waarin hij aangaf dat hij (alsnog) nakoming verlangde. Per brief van 22 oktober 2019 heeft [eiseres] op ieder door [gedaagden] aangegeven punt gereageerd, heeft zij [gedaagden] gesommeerd € 53.181,62 te betalen en heeft zij aangekondigd een procedure te starten als dit bedrag niet zou worden voldaan. [gedaagden] heeft daarop per e-mail van 22 november 2019 als volgt gereageerd:

“Cliënten zien thans geen aanleiding inhoudelijk te reageren op alle punten uit uw brief [van 22 oktober 2019, toevoeging rechtbank]. Ter zake – en overigens - behouden cliënten zich alle rechten en weren voor.

Wel reageer ik hierbij namens cliënten op de afsluiting van uw brief, waarin u een procedure aankondigt en een forumkeuze aan cliënt voorlegt. Cliënten stemmen niet in met arbitrage bij de Raad van Arbitrage.”

3.7. [gedaagden] heeft niet aan de sommatie voldaan.

3.8. [eiseres] is vervolgens deze procedure gestart.

Het geschil

in conventie

4.1. [eiseres] vordert, zakelijk weergegeven, [gedaagden] te veroordelen tot betaling van € 53.181,62, vermeerderd met rente en kosten.

4.2.Aan haar vordering legt [eiseres] , kort gezegd, het volgende ten grondslag. Zij heeft in opdracht van [gedaagden] aannemerswerkzaamheden verricht. [eiseres] moet in verband daarmee nog de volgende facturen voldoen:

Factuurnummer

Bedrag (in €)

Betaald (in €)

Open (in €)

2016126

25.000,-

11.000,-

14.000,-

2017199

14.000,-

0,-

14.000,-

2017207

9.750,-

4.975,-

4.775,-

2018149

5.538,78

0,-

5.538,78

2018150

4.509,67

0,-

4.509,67

2018151

1.089,-

0,-

1.089,-

2018152

240,28

0,-

240,28

2018153

12.337,35

0,-

12.337,35

2018154

178,72

0,-

178,72

2018155

624,36

0,-

624,36

2018156

1.034,55

0,-

1.034,55

2018157

537,06

0,-

537,06

2018158

544,50

0,-

544,50

2018159

272,25

0,-

272,25

2018160

423,50

0,-

423,50

2018161

1.045,74

0,-

1.045,74

2018162

1.512,50

0,-

1.512,50

2018163

574,75

0,-

574,75

2018164

130,11

0,-

130,11

2018165

265,38

0,-

265,38

2018166

327,95

0,-

327,95

2018167

608,94

0,-

608,94

2018168

1.942,44

0,-

1.942,44

2018169

2.789,99

0,-

2.789,99

2018170

-/- 8.676,29

0,-

-/- 8.676,29

20190151

-/- 5.327,41

0,-

-/- 5.327,41

Minderwerk

-/- 2.117,50

0,-

-/- 2.117,50

Totaal

53.181,62

4.3.Volgens [gedaagden] moet de vordering worden afgewezen.

4.4.Op de stellingen van partijen wordt hierna, voor zover van belang, nader ingegaan.

in reconventie

4.5. [gedaagden] vordert, zakelijk weergegeven, [eiseres] te veroordelen de volgende werkzaamheden te verrichten, op straffe van betaling van een dwangsom:

  1. Aanpassen van de draairichting van de harmonicadeur,

  2. Deugdelijk maken van een draai-kiepdeur van het Frans balkon van de ‘master beddroom’,

  3. Herstellen waterschade aan het schilderwerk bij de voordeur,

  4. Herstellen optrekkend vocht langs de muur in de garage en de hierdoor ontstane schade,

  5. Aanpassen van de WTW-installatie zodat deze geschikt is voor volledige communicatie met de KNX-module,

  6. Herstellen van de lekkages in de lichtstraat,

  7. Herstellen van de schade aan de parketvloer als gevolg van waterschade.

4.6.Verder vordert [gedaagden] , zakelijk weergegeven, [eiseres] te veroordelen, tot betaling van de volgende bedragen te vermeerderen met rente:

  1. € 834,90 in verband met kosten voor het aanbrengen van sneldrogend cement,

  2. € 27.073,25 in verband met minderwerk, voor zover dit niet kan worden verrekend met een schuld aan [eiseres] .

4.7.Volgens [gedaagden] moeten de vorderingen worden afgewezen.

4.8.Op de stellingen van partijen wordt hierna, voor zover van belang, nader ingegaan.

De beoordeling

in conventie en de geldvorderingen in reconventie

5.1. [eiseres] vordert in conventie betaling van diverse door haar gestuurde facturen. De vorderingen worden hierna puntsgewijs behandeld, nadat eerst een algemeen verweer wordt behandeld.

5.2. [gedaagden] stelt diverse tegenvorderingen (tot betaling van geld) te hebben in verband met minderwerk. Deze vorderingen wil hij verrekenen, althans hij vordert in reconventie betaling daarvan. Ook deze vorderingen worden hierna puntsgewijs behandeld.

5.3.Na afloop komt de rechtbank met een conclusie over alle geldvorderingen over en weer.

5.4.Bij de behandeling van de geldvorderingen geldt dat degene die betaling vordert de stelplicht en de bewijslast draagt. [eiseres] draagt dus de stelplicht/bewijslast wat betreft de vorderingen tot betaling van de facturen, [gedaagden] draagt de stelplicht/bewijslast wat betreft de tegenvorderingen in verband met minderwerk.

De facturen

Het vervallen van de facturen vanwege de late verzending

5.5.Het meest verstrekkende verweer van [gedaagden] tegen de vorderingen tot betaling van de facturen is dat [eiseres] geen recht meer heeft op betaling van de facturen, omdat zij de facturen te laat heeft gestuurd. Hij doet daarbij een beroep op de bepaling “Meerwerk wordt wekelijks verrekend” uit de overeenkomst.

5.6.De rechtbank is met [eiseres] van oordeel dat uit de bepaling “Meerwerk wordt wekelijks verrekend” niet volgt dat partijen hebben afgesproken dat [eiseres] geen recht meer heeft op betaling van de facturen als zij facturen na een bepaalde datum / termijn heeft gestuurd. Dat [eiseres] geen recht meer heeft op betaling onder bepaalde omstandigheden staat er immers niet. Van een verstrekkend gevolg als dat facturen vervallen, mag worden verwacht dat dat duidelijk is overeengekomen en dat is niet het geval. Het komt de rechtbank voor dat [eiseres] met de bepaling “Meerwerk wordt wekelijks verrekend” een bevoegdheid voor zichzelf heeft willen overeenkomen (namelijk om meerwerk wekelijks in rekening te brengen) en niet een verplichting om dat ook daadwerkelijk te doen op straffe van verval van de aanspraak op betaling.

Factuur 2016126 met een openstaand bedrag van € 14.000,-

5.7.Naar oordeel van de rechtbank is de vordering tot betaling van € 14.000,- voor factuur 2016126 niet toewijsbaar.

5.8.Partijen zijn het erover eens dat factuur 2016126 van € 25.000,- door [gedaagden] oorspronkelijk moest worden voldaan. Verder zijn partijen het erover eens dat de factuur oorspronkelijk volledig is voldaan, maar dat van de factuur later alsnog € 12.500,- open is gaan staan, omdat er € 12.500 is teruggeboekt (op verzoek van [gedaagden] , omdat hij meer financiële ruimte nodig had). Daaruit volgt dat er dus nog € 12.500,- moest worden voldaan voor factuur 2016126.

5.9. [gedaagden] heeft betoogd dat hij deze € 12.500,- heeft voldaan door € 1.000,- en € 11.500,- afzonderlijk te betalen. De € 11.500,- is weliswaar betaald naar aanleiding van de ontvangst van een andere factuur (factuur 2017168), maar deze factuur zag in feite op betaling van het openstaande bedrag van factuur 2016126.

5.10. [eiseres] heeft tegen deze uitleg, naar het oordeel van de rechtbank, onvoldoende ingebracht. [eiseres] erkent de € 1.000,- te hebben ontvangen. Wat de € 11.500,- betreft erkent [eiseres] ook dat bedrag te hebben ontvangen. Zij stelt verder weliswaar dat deze betaling zag op factuur 2017168 en dat deze factuur zag op wat anders dan het openstaande bedrag van factuur 2016126, maar zij heeft niet concreet aangegeven wat dat andere dan is. Dat lag wel op haar weg. Waarop de factuur anders zag kan overigens ook niet uit de omschrijving bij factuur 2017168 worden afgeleid, omdat die omschrijving met de woorden “werkzaamheden conform afspraak” veel (te) vaag is.

Facturen 2017199 en 2018168 met openstaande bedragen van € 14.000,- en € 1.942,44

5.11.Naar het oordeel van de rechtbank zijn de vorderingen tot betaling van € 14.000,- en € 1.942,44 voor facturen 2017199 en 2018168 niet toewijsbaar.

5.12. [eiseres] heeft namelijk onvoldoende feiten en omstandigheden gesteld waaruit volgt dat [gedaagden] de factuur moet voldoen.

5.13.De facturen zien op meerwerk voor sanitair. Partijen zijn het erover eens dat zij meerwerk voor het sanitair zijn overeengekomen (met offerte 2016170-1) en dus dat [gedaagden] in beginsel voor dit meerwerk moet betalen. Op factuur 2018168 wordt verwezen naar offerte 2017170-1, maar uit [eiseres] ’ toelichting volgt dat dit een verschrijving is en dat op de factuur 2018168 verwezen had moeten worden naar offerte 2016170-1.

5.14.Wat betreft de verschuldigdheid geldt dat [gedaagden] onbetwist heeft gesteld dat hij voor het meerwerk voor het sanitair al € 11.500,- heeft betaald (via betaling voor factuur 2017204). [eiseres] heeft vervolgens niet inzichtelijk gemaakt dat en waarom er aanvullend € 14.000,- + € 1.942,44 (of een ander bedrag) moet worden voldaan. [eiseres] heeft er weliswaar op gewezen (en dat is niet betwist) dat partijen een offerte voor het meerwerk voor het sanitair van € 15.605,32 zijn overeengekomen (offerte 2016170-1), maar ook is niet betwist dat [eiseres] een stuk minder heeft geleverd dan waarvoor was geoffreerd met offerte 2016170-1. De offerte 2016170-1 kan dan niet zonder meer als basis dienen voor [eiseres] ’ stelling dat er € 14.000,- + € 1.942,44 verschuldigd is. Vervolgens blijkt uit niets of, en zo ja, in welke mate [eiseres] zijn verplichtingen uit de offerte 2016170-1 is nagekomen.

Factuur 2017207 met een openstaand bedrag van € 4.775,-

5.15.Naar het oordeel van de rechtbank is de vordering tot betaling van € 4.775,- voor factuur 2017207 niet toewijsbaar.

5.16.Volgens [gedaagden] is factuur 2017207 niet verschuldigd, hetgeen zou blijken uit een door [eiseres] gestuurde creditfactuur. [eiseres] heeft hierop haar vordering niet onderbouwd, hetgeen gelet op het verweer van [gedaagden] wel op haar weg had gelegen.

Factuur 2018149 met een openstaand bedrag van € 5.538,78

5.17.Naar het oordeel van de rechtbank is de vordering tot betaling voor factuur 2018149 toewijsbaar tot € 3.000,-.

5.18.De factuur ziet op het “afwerken van het hellend vlak in de slaapkamer rechtsvoor (slaapkamer 5)”. Het is niet in geschil dat [eiseres] deze werkzaamheden heeft verricht en dat de werkzaamheden in opdracht van [gedaagden] zijn verricht. Dit betekent dat er voor de werkzaamheden moet worden betaald.

5.19.Volgens [gedaagden] hoeft hij niet voor de werkzaamheden te betalen, omdat de werkzaamheden waren begrepen in offerte 2017067 en hij de factuur voor deze offerte heeft voldaan.

5.20.De rechtbank is met [eiseres] echter van oordeel dat uit offerte 2017067 niet blijkt dat daarin “het afwerken van het hellend vlak in de slaapkamer rechtsvoor (slaapkamer 5)” was begrepen. De werkzaamheden zijn namelijk in de offerte als volgt beschreven:

5.21.In het eerste gedachtenstreepje zijn weliswaar vier slaapkamers vermeld, maar [eiseres] heeft onbetwist gesteld dat dit vier andere slaapkamers zijn dan de “slaapkamer rechtsvoor (slaapkamer 5)”. Ook verder bij de beschrijving van de werkzaamheden in de offerte is er niets wat aansluit bij de gefactureerde (en verrichte) werkzaamheden “het afwerken van het hellend vlak in de slaapkamer rechtsvoor (slaapkamer 5)”.

5.22. [gedaagden] heeft verder aangevoerd dat het onlogisch zou zijn om het afwerken van het hellend vlak van vier slaapkamers overeen te komen en niet van de vijfde kamer, maar [eiseres] heeft hiertegen ingebracht dat de betreffende slaapkamer (slaapkamer 5) voor een zoon was en dat deze zoon ten tijde van de offerte nog geen idee had hoe hij de afwerking van zijn kamer wilde hebben en dat dit pas na de offerte duidelijk is geworden. [gedaagden] heeft de door [eiseres] gegeven toelichting niet betwist, zodat de rechtbank uitgaat van de juistheid daarvan.

5.23.Partijen zijn het verder niet eens over de hoogte van het bedrag. Uit artikel 7:752 BW volgt dat [eiseres] als aannemer recht heeft op een redelijke prijs. [eiseres] heeft echter niet onderbouwd dat en waarom het door haar gefactureerde bedrag van € 5.538,78 redelijk is. Dat lag wel op haar weg.

5.24.De rechtbank begroot – grofweg, maar door de beperkte stellingen wat dit betreft over en weer is daar niet aan te ontkomen – het toe te wijzen bedrag op € 3.000,-. Daarbij wordt aangeknoopt bij offerte 2017067 van € 22.399,43 inclusief btw en de omstandigheden dat deze offerte ziet op het afwerken van circa vier kamers (dus circa € 5.500,- per kamer) en dat de daarin begrote werkzaamheden per kamer ruim meer lijken te omvatten dan het afwerken in de kamer van het hellend vlak.

Factuur 2018150 met een openstaand bedrag van € 4.509,67

5.25.Naar het oordeel van de rechtbank is de vordering tot betaling van € 4.509,67 voor factuur 2018150 niet toewijsbaar.

5.26.Volgens haar omschrijving ziet de factuur op “aanpassingen extra werk tussenwanden ouder slaapkamer”. [eiseres] heeft toegelicht dat partijen weliswaar een vaste prijs waren overeengekomen voor de bouw van een muur in de ouder slaapkamer, maar dat met deze factuur extra werk in verband met het afbouwen en opnieuw opbouwen van deze muur in rekening is gebracht, omdat [gedaagden] tijdens het opbouwen aangaf de muur iets anders te willen.

5.27.De vraag of voor toevoegingen of veranderingen in het overeengekomen werk (meerwerk) moet worden betaald wordt beantwoord aan de hand van artikel 7:755 BW. Dit artikel bepaalt dat in geval van door de opdrachtgever ( [gedaagden] ) gewenste toevoegingen of veranderingen in het overeengekomen werk (meerwerk) de aannemer ( [eiseres] ) slechts dan een verhoging van de prijs kan vorderen:

  • wanneer de aannemer de opdrachtgever ( [gedaagden] ) tijdig heeft gewezen op de noodzaak van een daaruit voortvloeiende prijsverhoging,

  • tenzij de opdrachtgever ( [gedaagden] ) de noodzaak van een prijsverhoging uit zichzelf had moeten begrijpen.

Aangezien [eiseres] betaling vordert op grond van 7:755 BW dient zij de feiten en omstandigheden te stellen (en indien nodig te bewijzen) dat zij heeft gewezen op een prijsverhoging (onderdeel a) of dat [gedaagden] uit zichzelf een prijsverhoging had moeten begrijpen (onderdeel b).

5.28. [eiseres] heeft niet gesteld dat zij heeft gewezen op een prijsverhoging. Onderdeel a is dus niet aan de orde.

5.29.Wat onderdeel b betreft heeft [eiseres] onvoldoende feiten en omstandigheden gesteld waaruit volgt dat [gedaagden] de noodzaak van een prijsverhoging uit zichzelf had moet begrijpen:

5.29.1. [eiseres] heeft aangevoerd dat zij de muur heeft moeten afbreken en diverse malen heeft moeten opbouwen. Dat staat echter niet vast. [gedaagden] heeft dat betwist (volgens heeft [gedaagden] in eerste instantie slechts enkele stellatten geplaatst) en [eiseres] heeft daarop haar stelling niet nader onderbouwd.

5.29.2. [eiseres] heeft verder aangevoerd dat het ontwerp van de muur is veranderd van een recht model naar een model met twee hoeken, dat de hoogte is veranderd, dat de gewenste locatie is veranderd en dat er een nis in moest worden aangebracht. [gedaagden] heeft echter betwist dat hij hieruit moest begrijpen dat hij met een prijsverhoging zou worden geconfronteerd. Volgens hem faciliteerde [eiseres] immers deze wijzigingen. Daarop heeft [eiseres] niet concreet aangegeven waaruit de wijzigingen bestaan, zodat uit het gestelde niet kan worden geconcludeerd dat [gedaagden] een prijsverhoging uit zichzelf had moeten begrijpen.

Factuur 2018151 met een openstaand bedrag van € 1.089,-

5.30.Naar het oordeel van de rechtbank is de vordering tot betaling van € 1.089,- voor factuur 2018151 niet toewijsbaar.

5.31.Volgens [eiseres] zag deze factuur op meerwerk, namelijk extra stukwerk van de zolder van de linker voorgevel. Voor de vraag of een factuur voor meerwerk toewijsbaar is geldt de hiervoor weergegeven maatstaf.

5.32.Uit het gestelde volgt (echter) noch dat [eiseres] heeft gewezen op een prijsverhoging, noch dat [gedaagden] de noodzaak van een prijsverhoging heeft moeten begrijpen.

5.33.Het staat vast – [gedaagden] heeft dat gesteld en het is niet betwist – dat onderdeel van hun overeenkomst met een vaste prijs was dat [eiseres] tot aan de nok zou stuken. Het staat verder vast dat [gedaagden] nadien opdracht heeft gegeven voor het maken van een extra zolder / opbergruimte door het toevoegen van een vloer. De rechtbank is van oordeel dat [gedaagden] uit het feit dat hij na de aanneemovereenkomst voor een extra zolder / opbergruimte (door het toevoegen van een vloer) opdracht heeft gegeven geen noodzaak van een prijsverhoging voor het stuken heeft moeten begrijpen. Zoals [gedaagden] heeft aangevoerd had [eiseres] ook zonder de extra zolder / opbergruimte (door het toevoegen van een vloer) immers de ruimte tot aan de nok moeten stuken. [eiseres] heeft weliswaar gesteld dat het stukwerk moeilijker was geworden dan de oorspronkelijke opdracht, omdat het stukwerk in een krappe ruimte (de zolder / opbergruimte) moest geschieden. De rechtbank is echter van oordeel dat niet van [gedaagden] mocht worden verwacht dat hij zich dit (en de daarmee gepaard gaande prijsverhoging voor het stuken) moest realiseren bij het geven van de opdracht voor het bouwen van de zolder / opbergruimte.

Factuur 2018152 met een openstaand bedrag van € 240,28

5.34.Naar het oordeel van de rechtbank is de vordering tot betaling van € 240,28 voor factuur 2018152 toewijsbaar. [gedaagden] erkent de factuur verschuldigd te zijn.

Factuur 2018153 met een openstaand bedrag van € 12.337,35

5.35.Naar het oordeel van de rechtbank is de vordering tot betaling voor factuur 2018153 toewijsbaar tot een bedrag van € 7.772,80.

5.36.De factuur ziet op het schilderen van dertien binnendeuren en binnendeurkozijnen. Het is niet in geschil dat [eiseres] deze werkzaamheden heeft verricht (althans heeft laten verrichten). Ook staat vast dat [gedaagden] , toen de bouw van de woning gaande was, opdracht heeft gegeven voor deze werkzaamheden, aangezien [eiseres] dat heeft gesteld en [gedaagden] dat niet heeft betwist. Dit betekent dat er voor de werkzaamheden moet worden betaald.

5.37.Volgens [gedaagden] was het schilderen van de dertien binnendeuren en binnendeurkozijn begrepen in een bedrag van € 2.000,- dat in de aannemingsovereenkomst was vermeld. [eiseres] heeft echter betwist dat dit het geval was. Anders dan [gedaagden] is de rechtbank van oordeel dat [gedaagden] niet mocht verwachten dat de € 2.000,- die in de aannemingsovereenkomst is vermeld ook het schilderen van dertien binnendeuren en binnendeurkozijnen omvatte. [gedaagden] heeft weliswaar aangevoerd dat in de aannemingsovereenkomst een bedrag van € 2.000,- is genoteerd voor “SCHILDERWERK […] Plinten in de gehele woning en 13 binnendeuren en kozijnen” en dat hieruit duidelijk blijkt dat ook de € 2.000,- de 13 binnendeuren en kozijnen omvatte. [eiseres] heeft hiertegen echter aangevoerd dat zij oorspronkelijk voor het schilderwerk van de plinten en de 13 binnendeuren en -kozijnen [gedaagden] een begroting had verstrekt van (meer dan) € 11.130,50, op basis van een offerte van een in te schakelen onderaannemer en dat [gedaagden] daarop heeft aangegeven dat hij dat teveel vond en dat hij zelf het schilderwerk aan de 13 binnendeuren en -kozijnen zou verrichten. Dit heeft [gedaagden] niet betwist. In dit licht moet het [gedaagden] duidelijk zijn geweest dat de vermelding van € 2.000,- voor “SCHILDERWERK […] Plinten in de gehele woning en 13 binnendeuren en kozijnen” in de aannemingsovereenkomst een vergissing was en dat de € 2.000,- alleen het schilderen van de plinten in de gehele woning betrof. Verder moet [gedaagden] de noodzaak van een prijsverhoging hebben begrepen (gezien de eerder gecommuniceerd begroting van (meer dan) € 11.130,-) bij het alsnog verstrekken van de opdracht voor het schilderen van de binnendeuren en -kozijnen. Aan artikel 7:755 BW is dan ook voldaan.

5.38.Partijen zijn het verder niet eens over de hoogte van het bedrag. Anders dan [eiseres] is de rechtbank van oordeel dat [eiseres] niet zonder meer de factuur van haar onderaannemer met een opslag kon doorbelasten aan [gedaagden] . Het staat immers niet vast dat [gedaagden] bekend was – laat staan akkoord was – met een offerte van de onderaannemer. [eiseres] heeft dat weliswaar gesteld, maar [gedaagden] heeft dat betwist en het blijkt niet uit de stukken.

5.39.Uit artikel 7:752 BW volgt dat [eiseres] als aannemer recht heeft op een redelijke prijs.

De rechtbank begroot de redelijke prijs (en daarmee het toe te wijzen bedrag) op € 7.772,80. Daarbij wordt aangeknoopt bij de door [eiseres] overlegde offerte van de onderaannemer (productie 7 bij de brief van 22 oktober 2019, productie 15 dagvaarding). In die offerte wordt namelijk een begroting van het schilderwerk afgegeven van € 11.130,60, maar uit de rest van de offerte blijkt dat in dit bedrag ook € 3.357,80 is begrepen voor kozijnen / deuren aan de buitenzijde en dat alleen € 7.772,80 (de som van € 3.357,80 en € 4.415,-) ziet op deuren en kozijnen aan de binnenzijde. Dat blijkt namelijk uit de volgende passage in de offerte:

Prijs

Buitenzijden

> gevelraamkozijnen/deuren € 3.357,80

Binnenzijden

> gevelraamkozjjnen/deuren € 3.357,80

> binnendeuren inlc. kozijnen/lichtstraat € 4.415,00

> plinten per/m1 € 8,70

Factuur 2018154 met een openstaand bedrag van € 178,72

5.41.De vordering tot betaling van € 178,72 voor factuur 2018154 is toewijsbaar. [gedaagden] erkent de factuur verschuldigd te zijn.

Factuur 2018155 met een openstaand bedrag van € 624,36

5.42.Naar het oordeel van de rechtbank is de vordering tot betaling van € 624,36 voor factuur 2018155 niet toewijsbaar.

5.43.Volgens de omschrijving ziet de factuur op “loze leidingen tbv camerasysteem”. [eiseres] heeft toegelicht dat dit meerwerk betrof. Voor de vraag of een factuur voor meerwerk toewijsbaar is geldt de hiervoor (in r.o. 5.27) weergegeven maatstaf.

5.44.Uit het gestelde volgt (echter) noch dat [eiseres] heeft gewezen op een prijsverhoging, noch dat [gedaagden] de noodzaak van een prijsverhoging heeft moeten begrijpen.

Het staat vast dat [gedaagden] heeft gevraagd om extra leidingen te leggen in de vloer (voor een later aan te leggen camerasysteem). [eiseres] heeft toegelicht dat de gefactureerde werkzaamheden bestonden uit het hak- en breekwerk voor het wegwerken van de uit de vloer komende leidingen in de muur. Volgens [gedaagden] zijn er – feitelijk – slechts vier gaten geboord in de muur.

Uit niets blijkt dat [gedaagden] bekend was dat deze werkzaamheden moesten worden verricht (de kern van de opdracht was immers het leggen van de leidingen in de vloer), laat staan dat hiervoor aanvullend (een bedrag van € 624,36) moest worden betaald.

Factuur 2018156 met een openstaand bedrag van € 1.034,55

5.46.Naar het oordeel van de rechtbank is de vordering tot betaling van € 1.034,55 voor factuur 2018156 niet toewijsbaar.

5.47. [eiseres] heeft toegelicht dat de factuur ziet op extra stalen liggers die zijn aangebracht naar aanleiding van een herberekening van de constructeur. Dat is meerwerk en voor de vraag of een factuur voor meerwerk toewijsbaar is geldt de hiervoor (in r.o. 5.27) weergegeven maatstaf.

5.48. [eiseres] heeft weliswaar gesteld dat [gedaagden] wist dat de herberekening van de constructeur een prijsverhoging met zich mee zou brengen, maar [gedaagden] heeft betwist dat hij dat wist. Volgens [gedaagden] bracht het nieuwe voorstel van de constructeur een versimpeling met zich mee (en dus geen prijsverhoging). [eiseres] heeft daarop haar stelling (dat [gedaagden] wist dat de herberekening van de constructeur een prijsverhoging met zich mee zou brengen) niet nader onderbouwd. Het staat dan ook niet vast dat [gedaagden] wist of had moeten begrijpen dat de herberekening een prijsverhoging met zich mee zou brengen.

Factuur 2018157 met een openstaand bedrag van € 537,06

5.49.Naar het oordeel van de rechtbank is de vordering tot betaling van € 537,06 voor factuur 2018157 niet toewijsbaar.

5.50.Deze factuur ziet op een kastje in de slaapkamer links voor. Vaststaat dat [eiseres] hiervoor opdracht heeft gegeven. Ook dit is meerwerk, aangezien partijen het erover eens zijn dat dit niet in de aannemersovereenkomst was begrepen.

5.51.Het staat vast dat [eiseres] niet heeft gewezen op een prijsverhoging.

5.52.Uit de stellingen van [eiseres] volgt niet dat [gedaagden] de noodzaak van een prijsverhoging moet hebben begrepen. [gedaagden] heeft immers onbetwist aangevoerd dat het kastje is geplaatst om een verdeler weg te werken, dat de verdeler zich in de buurt van andere kabels bevond, dat [eiseres] sowieso moest zorgen voor het wegwerken van de kabels en dat [gedaagden] heeft voorgesteld de kabels en de verdeler tegelijkertijd (door middel van een kastje) weg te werken. In dat licht valt niet zonder meer in te zien waarom het kastje in de slaapkamer links voor tot een prijsverhoging zou leiden.

Facturen 2018158 en 2018159 met openstaande bedragen van € 544,50 en € 272,25

5.53.Naar het oordeel van de rechtbank zijn de vorderingen tot betaling van € 544,50 en € 272,25 voor facturen 2018158 en 2018159 niet toewijsbaar.

5.54.De facturen zien op extra spuitwerk (factuur 2018158) en extra stukwerk (factuur 2018159), in verband met in een muur aangebrachte nisjes. Vaststaat dat [gedaagden] voor de bouw van de nisjes opdracht heeft gegeven na de aannemingsovereenkomst, dat hij deze nisjes gestukt en gespoten wilde hebben en dat [eiseres] de nisjes heeft gestukt en gespoten. Het stuken en spuiten van de nisjes is dan ook meerwerk. Voor de vraag of [eiseres] recht heeft op betaling voor het meerwerk geldt de hiervoor weergegeven maatstaf.

5.55.De rechtbank overweegt dat aan de voorwaarden van 7:755 BW niet is voldaan.

5.56.Het staat vast dat [eiseres] niet heeft gewezen op een prijsverhoging.

5.57.Uit de stellingen van [eiseres] volgt verder niet dat [gedaagden] de noodzaak van een prijsverhoging moet hebben begrepen. [eiseres] stelt dat de bouw van de nisjes meer spuit- en stukwerk tot gevolg hadden. [gedaagden] heeft dit echter betwist (volgens hem zorgden de nisjes niet / nauwelijks voor extra spuit- en stukwerk). Aan [eiseres] kan weliswaar worden toegegeven dat het voorstelbaar is dat nisjes extra spuit- en stukwerk met zich mee kunnen brengen. Belangrijk is echter dat het voor [gedaagden] duidelijk moet zijn geweest dat de opdracht tot het bouwen van nisjes tot extra kosten voor spuit- en stukwerk zou leiden. In dat kader is de omvang van het extra spuit- en stukwerk (waar [gedaagden] rekening mee moest houden) van belang, maar daarover heeft [eiseres] niets gesteld.

Factuur 2018160 met een openstaand bedrag van € 423,50

5.58.Naar het oordeel van de rechtbank is de vordering tot betaling van € 423,50 voor factuur 2018160 niet toewijsbaar.

5.59.De factuur ziet op het schilderen van twee trappen. [eiseres] heeft aangevoerd dat partijen hebben afgesproken dat zij de trappen zou schilderen voor € 300,- per trap, zodat ook de factuur 2018160 voor het schilderen van de twee trappen moet worden betaald.

5.60. [gedaagden] heeft hiertegen aangevoerd dat hij de trappen door een derde heeft laten schilderen en dat hij deze derde rechtstreeks heeft betaald, zodat van hem niet kan worden verwacht dat hij nogmaals betaalt voor het schilderen van de trappen.

5.61.De rechtbank overweegt als volgt.

5.62.Uit de wet volgt dat een tussen schuldenaar en schuldeiser krachtens rechtshandeling geldende regel niet van toepassing is, voor zover dit in de gegeven omstandigheden naar maatstaven van redelijkheid en billijkheid onaanvaardbaar zou zijn (artikel 6:2 lid 2 BW). Hieruit volgt dat een schuldeiser zijn rechten kan hebben verwerkt (het zogenaamde leerstuk van rechtsverwerking). Er moet sprake zijn van bijzondere omstandigheden op grond waarvan bij de wederpartij gerechtvaardigd vertrouwen is gewekt dat de rechthebbende zijn aanspraak niet meer geldend zal maken, of waardoor de positie van de wederpartij onredelijk verzwaard of benadeeld zou worden indien het recht of de bevoegdheid alsnog geldend wordt gemaakt. Enkel tijdsverloop is daarvoor onvoldoende, maar kan wel als een van de relevante omstandigheden meewegenn

HR 11 november 2016, ECLI:NL:HR:2016:2574 (https://new.navigator.nl/document/id028fc93e1d4b41eba9debcdaa516c870), NJ 2017/75 (https://new.navigator.nl/document/ida54e37b1097e40acbd5859268d464154)(Bab/Cordial c.s. en MHS), r.o. 4.2.

.

5.63.Naar het oordeel van de rechtbank is van een dergelijke rechtsverwerking sprake. Weliswaar hebben partijen een afspraak gemaakt over het schilderen van de trappen door [eiseres] , maar [eiseres] heeft, zo overweegt de rechtbank, met haar handelen het vertrouwen gewekt dat zij de trappen niet meer zou (laten) schilderen en dat zij geen aanspraak (meer) zou maken op betaling van de daarvoor overeengekomen prijs.

5.64.De rechtbank acht daarbij van belang dat de trappen niet zijn geschilderd door [eiseres] (of iemand in haar opdracht), maar door iemand waarmee [gedaagden] rechtstreeks contact heeft gehad. [eiseres] heeft dat niet betwist. [eiseres] stelt dat de werkzaamheden van de derde “aanvullende” schilderwerkzaamheden zijn, maar dat veronderstelt dat [eiseres] de trappen ook zelf heeft geschilderd / heeft laten schilderen. Dit wordt door [eiseres] niet gesteld en blijkt ook nergens uit.

5.65.Verder volgt uit de stellingen van partijen niet duidelijk wanneer de trappen zijn geschilderd. Voor zover de trappen vóór de oplevering door een derde zijn geschilderd, moet [eiseres] als hoofdaannemer dat hebben gezien en voor zover de trappen nog niet waren geschilderd ten tijde van de oplevering, moet zij hebben geweten dat de trappen nog niet waren geschilderd.

5.66.In dat licht had van [eiseres] mogen worden verwacht dat als zij de trappen (nog) wilde (laten) schilderen zij dat zou aangeven op het moment van de oplevering of op het moment dat zij constateerde dat een andere schilder aan de slag was (geweest). Uit niets blijkt dat [eiseres] heeft geklaagd over het schilderen door de derde (als het schilderen is gebeurd voor de oplevering) of dat zij een opmerking heeft gemaakt over het feit dat zij de trappen nog moest schilderen (als de trappen nog niet waren geschilderd ten tijde van de oplevering). Doordat [eiseres] niets heeft aangeven op het moment van de oplevering of op het moment dat zij constateerde dat een andere schilder aan de slag was (geweest), is de rechtbank van oordeel dat zij het vertrouwen heeft gewekt dat zij de trappen niet (nog) zou (laten) schilderen en dat zij geen aanspraak zou maken op betaling van de daarvoor overeengekomen prijs.

Factuur 2018161 met een openstaand bedrag van € 1.045,74

5.67.Naar het oordeel van de rechtbank is de vordering tot betaling van € 1.045,74 voor factuur 2018161 niet toewijsbaar.

5.68.Met de factuur vordert [eiseres] betaling voor meerwerk, in verband met tegelwerk dat zij heeft verricht. Dit tegelwerk was oorspronkelijk in de aannemingsovereenkomst opgenomen, maar partijen zijn nadien overeengekomen dat het tegelwerk “uit de begroting zou worden gehaald”, aldus [eiseres] . [eiseres] heeft het tegelwerk verricht. [eiseres] heeft dan ook recht op betaling voor het verrichte tegelwerk, aldus [eiseres] .

5.69.Partijen zijn het erover eens dat het tegelwerk in de aannemingsovereenkomst was opgenomen. Naar het oordeel van de rechtbank staat het echter niet vast dat partijen nadien zijn overeengekomen dat het tegelwerk “uit de begroting zou worden gehaald”. [gedaagden] heeft betwist dat partijen dat zijn overeengekomen. Volgens [eiseres] blijkt het feit dat partijen zijn overeengekomen dat het tegelwerk “uit de begroting zou worden gehaald” uit haar e-mail van 18 juni 2018 waarin staat:

Bijgevoegd heb ik een financieel overzicht betreft meer/minderwerk […]

Omschrijving

Aantal

Eenhe

Totaal MU

MU Kosten

Materiaal /materieel

Totale kosten

[…]

Tegelwerk/tegels uit begr.

1

pst

€ -

########

€ -12.675,00

Uit deze e-mail blijkt echter niet dat [gedaagden] met de inhoud van de e-mail akkoord was. De e-mail is enkel van [eiseres] afkomstig. [eiseres] heeft geen e-mail van [gedaagden] overgelegd waaruit blijkt dat [gedaagden] akkoord was. Ook heeft [eiseres] niet toegelicht waaruit zij het akkoord mocht afleiden.

5.70.Aangezien met haar vordering betaling vordert voor meerwerk en het niet vaststaat dat het gefactureerde meerwerk is (het tegelwerk was immers onderdeel van de aannemingsovereenkomst), is de vordering niet toewijsbaar. Voor zover [eiseres] heeft bedoeld betaling te vorderen van het deel van de aanneemsom dat ziet op het tegelwerk, is niet gesteld noch gebleken dat [gedaagden] dat deel niet heeft voldaan.

Factuur 2018162 met een openstaand bedrag van € 1.512,50

5.71.Naar het oordeel van de rechtbank is de vordering tot betaling van € 1.512,50 voor factuur 2018162 niet toewijsbaar.

5.72. [eiseres] heeft toegelicht dat deze factuur ziet op stukwerk dat is verricht op de eerste verdieping. Al in haar conclusie van antwoord heeft [gedaagden] betwist dat hij voor de gefactureerde werkzaamheden opdracht heeft gegeven (en ook dat hij niet weet over welk stukwerk dit gaat). Daarop heeft [eiseres] niet nader onderbouwd dat [gedaagden] voor deze werkzaamheden opdracht heeft gegeven, zodat dit niet vaststaat. Ook heeft [eiseres] geen verdere toelichting gegeven dan de al bij conclusie van antwoord bekende toelichting dat het gaat om stukwerk (ergens) op de eerste verdieping. Voor toewijzing van de vordering op grond van ongerechtvaardigde verrijking (voor zover [eiseres] daarop zijn vordering heeft willen baseren) heeft [eiseres] onvoldoende gesteld. Zo blijkt uit niets dat en, zo ja, in hoeverre, [gedaagden] is verrijkt.

Factuur 2018163 met een openstaand bedrag van € 574,75

5.73.Naar het oordeel van de rechtbank is de vordering tot betaling van € 574,75 voor factuur 2018163 toewijsbaar.

5.74.De factuur ziet op een uitstortgootsteen.

5.75.Volgens [gedaagden] hoeft hij voor het plaatsen van de uitstortgootsteen niet te betalen, om de volgende reden. [gedaagden] heeft akkoord gegeven op een offerte van 15 september 2016 en deze offerte zag ook op de uitstortgootsteen. Dan is hij niet gehouden nogmaals te betalen voor de uitstortgootsteen afzonderlijk. [eiseres] betwist echter dat de offerte van 15 september 2016 ook betrekking had op de uitstortgootsteen.

5.76.De rechtbank overweegt als volgt.

5.77.Partijen zijn het erover eens dat [gedaagden] akkoord heeft gegeven op een offerte van 15 september 2016 en dat in deze offerte de uitstortgootsteen niet uitdrukkelijk stond vermeld.

5.78. [gedaagden] heeft gewezen op de volgende e-mailcorrespondentie tussen de loodgieter en [gedaagden] :

- [gedaagden] , 18 mei 2017: “Voor sanitair is alles goed zoals je meldt zonder wastafels en dan eventueel de uitloop van de kranen.”

- Loodgieter, 19 mei 2017: “Zijdouche is op gevragen, hier doe ik een voorstel voor tegelijk met het uitstort gootsteentje in de garage/werkplaats”

Ook heeft [gedaagden] gewezen op de volgende e-mail van de loodgieter aan [gedaagden] :

- Loodgieter, 22 oktober 2016: “Ter bevestiging als zojuist besproken per telefoon. […]

- Riool voor uitstort gootsteen verplaatsen naast sectionaaldeur van buitenaf gezien links naast deur. Onder de uitstort gootsteen willen ze graag een schrob putje.”

5.80.Anders dan [gedaagden] is de rechtbank van oordeel dat uit deze e-mails niet blijkt dat de aanleg van de uitstortgootsteen onderdeel uitmaakte van de offerte van 15 september 2016. Naar de offerte wordt niet verwezen. Verder blijkt uit de e-mails niet dat partijen het eens zijn over het leveren van een uitstortgootsteen door [eiseres] (althans de loodgieter, voor zover deze namens [eiseres] communiceerde). Dat de loodgieter in de e-mail van 22 oktober 2016 aan [gedaagden] (hiervoor geciteerd) het heeft over de locatie van het riool voor de uitstortgootsteen, duidt er, zonder een nadere toelichting die ontbreekt, niet op dat ook de uitstortgootsteen zelf door de loodgieter (of [eiseres] ) zou worden geleverd.

5.81.Overigens blijkt ook nergens anders uit dat partijen over de uitstortgootsteen specifieke prijsafspraken zijn gemaakt. Dat het [eiseres] duidelijk was dat er een uitstortgootsteen zou komen (zoals [gedaagden] ook heeft aangevoerd) betekent nog niet dat deze uitstortgootsteen onderdeel was van de afspraak die partijen met de offerte van 15 september 2016 hebben gemaakt.

5.82.Voor de uitstortgootsteen zal op grond van artikel 7:752 BW een redelijke prijs moeten worden betaald. Uit [eiseres] ’ stellingen volgt immers onbetwist dat zij de uitstortgootsteen heeft geplaatst / laten plaatsen en dat [gedaagden] ook opdracht daartoe heeft gegeven.

5.83.Wat de redelijke prijs van de uitstortgootsteen betreft knoopt de rechtbank aan bij het gefactureerde bedrag van € 574,75. [gedaagden] heeft de juistheid van de hoogte niet betwist en het bedrag komt de rechtbank niet onredelijk over.

Factuur 2018164 met een openstaand bedrag van € 130,11

5.84.Naar het oordeel van de rechtbank is de vordering tot betaling van € 130,11 voor factuur 2018164 niet toewijsbaar.

5.85.Deze factuur ziet op een tapkraan in het gastentoilet. Partijen zijn het erover eens dat in de door [gedaagden] geaccordeerde offerte van 15 september 2016 een tapkraan in het gastentoilet was opgenomen. Volgens [eiseres] is echter op verzoek van [gedaagden] een duurdere tapkraan geleverd dan was geoffreerd. [gedaagden] betwist dat.

5.86.De rechtbank overweegt als volgt.

5.87. [eiseres] stelt weliswaar dat zij een andere kraan heeft geleverd dan was geoffreerd met de offerte van 15 september 2016, maar dat dit het geval is, heeft [gedaagden] betwist en blijkt overigens nergens uit. [eiseres] heeft verwezen naar een herziene offerte van 19 januari 2017 en de daarop weergegeven tapkraan. Los van het feit dat [eiseres] niet heeft toegelicht wat de waarde was van de herziene offerte (in het licht van de eerdere offerte), heeft [eiseres] niet toegelicht waaruit volgt dat daarop een andere kraan te zien was. [eiseres] heeft een zogenaamde wegwijsplicht en het staat de rechtbank, op grond van vaste jurisprudentie, niet vrij om in de offerte en de herziene offerte een zoektocht te ondernemen en een meer dan minimale vertaalslag te maken naar wat (mogelijk) relevant is en waarom.

Factuur 2018165 met een openstaand bedrag van € 265,38

5.88.Naar het oordeel van de rechtbank is de vordering tot betaling van € 265,38 voor factuur 2018165 niet toewijsbaar.

5.89.Deze factuur ziet op een schouderdouche in de badkamer bij de ouderslaapkamer. Vaststaat dat [gedaagden] hiervoor opdracht heeft gegeven.

5.90.Partijen zijn het er niet over eens of de schouderdouche in de offerte van 15 september 2016 was opgenomen. Als dit het geval is, is de vordering alleen al daarom niet toewijsbaar, omdat met de factuur geen betaling wordt gevorderd voor de offerte.

5.91.Maar zelfs als de schouderdouche niet was opgenomen in de offerte, is de vordering niet toewijsbaar. Er is dan namelijk sprake van meerwerk en voor de vraag of [eiseres] recht heeft op betaling voor het meerwerk geldt de maatstaf hierboven en aan deze maatstaf is niet voldaan.

5.92.Het staat vast dat [eiseres] niet heeft gewezen op een prijsverhoging.

5.93.Uit de stellingen van [eiseres] volgt verder niet dat [gedaagden] de noodzaak van een prijsverhoging moet hebben begrepen. [gedaagden] heeft immers onbetwist aangevoerd dat partijen met de offerte van 15 september 2016 een handdouche in de badkamer bij de ouderslaapkamer waren overeengekomen en dat [gedaagden] later heeft gevraagd om de handdouche te vervangen door een schouderdouche. Dat een schouderdouche duurder is dan een handdouche heeft [eiseres] niet onderbouwd en blijkt ook overigens nergens uit (laat staan dat deze schouderdouche zodanig duurder was dat [gedaagden] de prijsverhoging (van € 265,68) moet hebben begrepen).

Factuur 2018166 met een openstaand bedrag van € 327,95

5.94.Naar het oordeel van de rechtbank is de vordering tot betaling van € 327,95 voor factuur 2018166 toewijsbaar.

5.95.De factuur ziet op een rvs douchegoot ouderslaapkamer. Uit [eiseres] ’ stellingen volgt dat zij deze heeft geplaatst en dat [gedaagden] daarvoor opdracht heeft gegeven. Dat is ook niet betwist.

5.96.Volgens [gedaagden] hoeft hij voor het plaatsen van de rvs douchegoot ouderslaapkamer niet te betalen omdat de levering van de rvs douchegoot ouderslaapkamer in een offerte was opgenomen. [eiseres] betwist echter dat de rvs douchegoot ouderslaapkamer in een offerte was opgenomen en in het bijzonder dat offerte 2016170-1 ook de levering van een rvs douchegoot ouderslaapkamer omvatte, omdat in deze offerte de levering van douchegoten uitdrukkelijk was uitgesloten.

5.97.De rechtbank overweegt dat het niet vaststaat dat de levering van de rvs douchegoot ouderslaapkamer in een offerte was opgenomen. [gedaagden] heeft dat gesteld, maar dat is betwist en blijkt nergens uit. Zo heeft [gedaagden] niet uitdrukkelijk gewezen op de (meerwerk)offerte waarin dit zou staan en de passage uit de offerte waaruit dit zou blijken. [gedaagden] heeft betoogd dat een loodgieter heeft verklaard dat een offerte de rvs douchegoot ouderslaapkamer omvatte, maar deze stelling wordt als onvoldoende concreet gepasseerd.

5.98.Voor de rvs douchegoot ouderslaapkamer zal op grond van artikel 7:752 BW een redelijke prijs moeten worden betaald. Wat de redelijke prijs betreft knoopt de rechtbank aan bij het gefactureerde bedrag van € 327,95. [gedaagden] heeft de juistheid van de hoogte niet betwist en het bedrag komt de rechtbank niet onredelijk over.

Factuur 2018167 met een openstaand bedrag van € 608,94

5.99.Naar het oordeel van de rechtbank is de vordering tot betaling van € 608,94 voor factuur 2018167 niet toewijsbaar.

5.100. Deze factuur ziet op “schilderwerk kozijn achterdeur en plafond”. Partijen zijn het erover eens dat dit schilderwerk in de aannemingsovereenkomst als stelpost was opgenomen van € 4.000 (ex btw). [eiseres] heeft toegelicht dat met de factuur de overschrijding van deze stelpost in rekening is gebracht. [gedaagden] heeft de verschuldigdheid van de factuur betwist.

5.101. Naar de rechtbank begrijpt hebben partijen met de stelpost bedoeld een richtprijs te geven. Uit artikel 7:752 lid 1 BW volgt dat de opdrachtgever een redelijke prijs is verschuldigd, ook als een richtprijs is bepaald. Ook volgt uit dit artikel dat de aannemer, ook als een richtprijs is bepaald, dient te stellen en zo nodig te bewijzen dat de door haar gevorderde prijs redelijk is en aan haar toekomt. Bij het bepalen van de redelijke prijs dient rekening te worden gehouden met de door de aannemer ten tijde van het sluiten van de overeenkomst gewoonlijk bedongen prijzen (zoals een richtprijs).

5.102. [eiseres] heeft niets gesteld waaruit blijkt dat het door haar gevorderde bedrag redelijk is. Zo heeft zij niet toegelicht hoeveel uren zij heeft besteed, welk uurloon is gehanteerd, noch welke kosten zij heeft gemaakt. Uit niets blijkt dan ook dat zij recht heeft op meer dan het overeengekomen bedrag van de stelpost (van € 4.000, ex btw), laat staan dat zij recht heeft op het gevorderde bedrag van € 608,94.

Factuur 2018169 met een openstaand bedrag van € 2.305,78

5.103. Naar het oordeel van de rechtbank is de vordering tot betaling van € 2.305,78 voor factuur 2018169 toewijsbaar. [gedaagden] erkent de factuur verschuldigd te zijn.

Tussenconclusie

5.104. Uit het voorgaande volgt dat over de vorderingen tot betaling voor de volgende facturen als volgt wordt geoordeeld:

Factuurnr

Bedrag (in €)

Betaald (in €)

Open (in €)

Oordeel

2016126

25.000,-

11.000,-

14.000,-

Afwijzen

2017199

14.000,-

0,-

14.000,-

Afwijzen

2017207

9.750,-

4.975,-

4.775,-

Afwijzen

2018149

5.538,78

0,-

5.538,78

Toewijzen tot een bedrag van € 3.000,-

2018150

4.509,67

0,-

4.509,67

Afwijzen

2018151

1.089,-

0,-

1.089,-

Afwijzen

2018152

240,28

0,-

240,28

Toewijzen

2018153

12.337,35

0,-

12.337,35

Toewijzen tot een bedrag van € 7.772,80

2018154

178,72

0,-

178,72

Toewijzen

2018155

624,36

0,-

624,36

Afwijzen

2018156

1.034,55

0,-

1.034,55

Afwijzen

2018157

537,06

0,-

537,06

Afwijzen

2018158

544,50

0,-

544,50

Afwijzen

2018159

272,25

0,-

272,25

Afwijzen

2018160

423,50

0,-

423,50

Afwijzen

2018161

1.045,74

0,-

1.045,74

Afwijzen

2018162

1.512,50

0,-

1.512,50

Afwijzen

2018163

574,75

0,-

574,75

Toewijzen

2018164

130,11

0,-

130,11

Afwijzen

2018165

265,38

0,-

265,38

Afwijzen

2018166

327,95

0,-

327,95

Toewijzen

2018167

608,94

0,-

608,94

Afwijzen

2018168

1.942,44

0,-

1.942,44

Afwijzen

2018169

2.789,99

0,-

2.789,99

Toewijzen

5.105. Het totaal van de toe te wijzen bedragen (hierboven gemarkeerd) komt uit op € 14.884,49.

De creditfacturen

5.106. [eiseres] had zelf al de volgende bedragen in mindering gebracht:

Factuurnr

Bedrag (in €)

Betaald (in €)

Open (in €)

2018170

-/- 8.676,29

0,-

-/- 8.676,29

20190151

-/- 5.327,41

0,-

-/- 5.327,41

Minderwerk

-/- 2.117,50

0,-

-/- 2.117,50

5.107. De rechtbank oordeelt hierover als volgt.

5.108. Het bedrag van -/- € 8.676,29 voor de credit-factuur 2018170 omvat -/- € 4.775,-, waarmee factuur 2017207 werd gecrediteerd. Dat volgt uit de omschrijving bij de factuur. Aangezien de vordering tot betaling van € 4.775,- voor factuur 2017207 niet wordt toegewezen (r.o. 5.15 en 5.16), behoort het bedrag van € 4.775,- ook niet nogmaals in mindering te worden gebracht.

5.109. Het bedrag van -/- € 8.676,29 voor factuur 2018170 omvat ook -/- € 3.470,53, waarmee de facturen voor het sanitair deels werden gecrediteerd. Dat volgt uit de omschrijving bij de factuur, maar ook uit [eiseres] ’ toelichting bij factuur 2017199. Het creditbedrag rust op de aanname dat de facturen voor het sanitair verschuldigd zijn. Omdat de vorderingen tot betaling van de facturen voor het sanitair – facturen 2017199 en 2018168 – niet worden toegewezen, behoort het bedrag van € 3.470,53 ook niet in mindering te worden gebracht.

5.110. Het restantbedrag van -/- € 430,76 voor factuur 2018170 zal wel in mindering worden gebracht. Uit de toelichting bij de factuur blijkt dat dit ziet op een vervallen eindschoonmaak (en de rechtbank kan zich voorstellen dat de eindschoonmaak inderdaad is vervallen gezien het geschil tussen partijen).

5.111. Het bedrag van -/- € 5.327,41 voor factuur 20190151 omvat (+) € 176,50 waarmee een opslag op factuur 2018160 in rekening werd gebracht. Dat volgt uit [eiseres] ’ toelichting. Net zo min als dat de verschuldigdheid van € 423,50 voor factuur 2018160 is gebleken, is de verschuldigdheid van de opslag daarop ook niet gebleken. Het bedrag van € 176,50 behoort dan ook niet te worden betrokken bij de creditfactuur.

5.112. Het bedrag van -/- € 5.327,41 voor factuur 20190151 omvat -/- € 5.166,19 waarmee (een deel) van factuur 2018161 werd gecrediteerd. De rechtbank kan deze creditering niet goed volgen (factuur 2018161 heeft een hoogte van € 1.045,74 en kan dan ook moeilijk een bedrag van € 5.166,19 omvatten), maar omdat [eiseres] erkent

€ 5.166,19 verschuldigd te zijn en [gedaagden] de kans zou worden ontnomen te reageren als dit anders wordt gelezen, zal dit bedrag ook in mindering worden gebracht.

5.113. Het bedrag van -/- € 5.327,41 voor factuur 20190151 omvat -/- € 337,21 waarmee factuur 2018168 deels werd gecrediteerd. Het creditbedrag rust op de aanname dat factuur 2018168 verschuldigd is. Omdat de vorderingen tot betaling van factuur 2018168 niet wordt toegewezen, behoeft het bedrag van € 337,21 ook niet in mindering te worden gebracht.

5.114. Het bedrag van -/- € 5.327,41 voor factuur 20190151 omvat tot slot een bedrag van (onduidelijk of dit + of -/- is) € 0,61 waarmee zojuist genoemde creditfactuur 2018170 deels werd gecorrigeerd. Deze correctie rust op de aanname dat de facturen voor het sanitair verschuldigd zijn en het deel van creditfactuur 2018170 dat ziet op het sanitair in mindering moet worden gebracht. Omdat deze aannames onjuist zijn, is de correctie van € 0,61 niet nodig.

5.115. Het creditbedrag van € 2.117,50 (zonder factuur) staat tussen partijen niet ter discussie, zodat dit in mindering wordt gebracht op de vorderingen tot betaling van de facturen.

5.116. De conclusie is dan ook dat € 7.714,45 (= € 430,76 + € 5.166,19 + € 2.117,50) in mindering wordt gebracht op de vorderingen tot betaling van de facturen.

Conclusie

5.117. De conclusie wat betreft de vorderingen tot betaling voor facturen is dan ook dat [gedaagden] in totaal nog € 7.170,04 (= € 14.884,49 -/- € 7.714,45) verschuldigd is.

Tegenvorderingen in verband met minderwerk

5.118. [gedaagden] vordert terugbetaling van in totaal € 27.073,25 in verband met minderwerk. Het bedrag van € 27.073,25 bestaat uit de volgende posten:

5.119. Deze posten worden hierna puntsgewijs doorgenomen.

5.120. Bij de behandeling van de minderwerkposten stelt de rechtbank het volgende voorop. Minderwerk is niet in de wet geregeld. Wat minderwerk in het spraakgebruik wordt genoemd kan juridisch ofwel worden beschouwd als (1) een nadere overeenkomst om minder werk te verrichten dan oorspronkelijk was overeengekomen of (2) een gedeeltelijke opzegging door de opdrachtgever (in dit geval [gedaagden] ) van de overeenkomst. In beide gevallen geldt dat voor het werk waarvan wordt betoogd dat het minderwerk is, partijen in eerste instantie zijn overeengekomen dat het werk zou worden verricht door (/namens) de aannemer en dat de opdrachtgever ervoor zou betalen. Voorwaarde voor toewijzing van een vordering op grond van minderwerk is, is dus in ieder geval (i) dat vaststaat dat het minderwerk in eerste instantie onderdeel was van een overeenkomst tussen partijen. Als verder vaststaat dat (ii) de aannemer de werkzaamheden niet heeft uitgevoerd, ligt het voor de hand dat sprake is van een overeenkomst voor het verrichten van minderwerk althans van een geaccepteerde opzegging, (iii) tenzij blijkt dat een van beide partijen het met de niet uitvoering oneens is. Aangezien [gedaagden] terugbetaling vordert van de minderwerk posten waarvoor hij wel heeft betaald, dient hij feiten en omstandigheden te stellen waaruit volgt dat tenminste aan de voorwaarden is voldaan dat vaststaat dat het minderwerk in eerste instantie onderdeel was van een overeenkomst tussen partijen en dat de aannemer de werkzaamheden niet heeft uitgevoerd.

a. De posten die zien op niet geleverde / niet aangebrachte tegels en dorpels

5.121. [gedaagden] vordert terugbetaling voor minderwerk voor diverse posten die verband houden met het niet leveren / niet aanbrengen van tegels en dorpels. Dit gaat over de volgende posten:

5.122. Deze posten worden gezamenlijk behandeld, omdat [eiseres] tegen deze posten een vergelijkbaar verweer heeft gevoerd.

5.123. Partijen zijn het erover eens dat [eiseres] de tegels en dorpels niet heeft geleverd / aangebracht, zodat dat vaststaat.

5.124. Naar het oordeel van de rechtbank zijn deze posten (in totaal € 6.885,60) toewijsbaar, omdat het vaststaat dat het leveren / aanbrengen van de tegels en dorpels in de aanneemovereenkomst was opgenomen, de aanneemsom is betaald en het vaststaat dat [eiseres] de tegels en dorpels niet heeft geleverd / niet heeft aangebracht.

5.125. Dat het leveren / aanbrengen van de tegels en dorpels onderdeel uitmaakte van de aanneemovereenkomst heeft [gedaagden] gesteld, blijkt uit de aanneemovereenkomst en heeft [eiseres] onvoldoende gemotiveerd betwist. [eiseres] heeft er weliswaar op gewezen dat het leveren / aanbrengen van tegels als stelpost was opgenomen, maar dat betekent niet dat het leveren / aanbrengen van tegels geen onderdeel uitmaakte van de aanneemovereenkomst. In de begroting staat immers:

en verderop:

Hieruit blijkt dat het totaal (het hierboven genoemde bedrag van € 406.119,-) ook de stelposten (voor het leveren / aanbrengen van tegels) omvat. Dit totaal (van € 406.119,-) is de basis geweest voor de aanneemsom die met de aanneemovereenkomst is overeengekomen.

5.126. [eiseres] stelt dat het tegelwerk “uit de aanneemsom [is] gehaald”. Voor zover [eiseres] hiermee heeft bedoeld te zeggen dat zij de stelpost voor het tegelwerk ook niet in rekening heeft gebracht, blijkt dat uit niets. [eiseres] heeft gewezen op een e-mail van 18 juni 2018 waarin zij het volgens haar aanwezige minderwerk weergeeft en waarin ook een vermindering van € 12.675,- voor het tegelwerk is weergegeven. Uit deze e-mail blijkt echter niet dat de € 12.675,- al in mindering is gebracht op de aanneemsom / niet is gefactureerd. Het is eerder het tegendeel: juist het feit dat [eiseres] in de e-mail van 18 juni 2018 meedeelt dat zij het tegelwerk als minderwerk ziet, duidt erop dat zij het in rekening heeft gebracht en het in mindering wil gaan brengen.

De posten die zien op niet verricht stuk-, schilder- en spuitwerk

5.127. [gedaagden] vordert betaling voor minderwerk voor diverse posten die verband houden met het niet verrichten van stuk-, schilder- en spuitwerk. Dit gaat over de volgende posten:

5.128. Deze posten worden gezamenlijk behandeld, omdat [eiseres] tegen deze posten een vergelijkbaar verweer heeft gevoerd.

5.129. Naar het oordeel van de rechtbank zijn deze posten, met uitzondering van de post die ziet op de schouw, niet toewijsbaar, omdat het niet vaststaat dat het stuk-, schilder- en spuitwerk in de aanneemovereenkomst was opgenomen.

5.130. [gedaagden] heeft erop gewezen dat partijen met de aanneemovereenkomst zijn overeengekomen dat “alle muren” zouden worden gestukt en geschilderd / gespoten. Dit is echter onvoldoende. Het staat namelijk vast dat na de totstandkoming van de aanneemovereenkomst delen van het ontwerp van de woning zijn gewijzigd. De afspraak dat “alle muren” zouden worden gestukt / geschilderd / gespoten betekent dan niet zonder meer dat ook alle muren van de na de aanneemovereenkomst gewijzigde woning zouden worden gestukt / geschilderd / gespoten. Dat valt ook niet zonder meer uit de stukken af te leiden. Uit de bestektekening kan dit niet zonder meer worden afgeleid. In dat kader had het op de weg van [gedaagden] aan te geven waaruit volgt dat de muur niet is geschilderd / gespoten / gestukt wel onder “alle muren” uit de aanneemovereenkomst viel. Omdat [gedaagden] dat niet heeft gedaan en [eiseres] (met uitzondering van de schouw) heeft betwist dat het stuken / schilderen / spuiten van de muur in de aanneemovereenkomst was opgenomen, staat het niet vast dat de muren in verband waarmee minderwerk wordt gevorderd vallen onder de kwalificatie “alle muren” uit de aanneemovereenkomst.

5.131. Wat het niet stuken en niet schilderen van de schouw in de woonkamer is de rechtbank van oordeel dat € 90,- moet worden toegewezen.

5.132. Dat het stuken en schilderen van de schouw onderdeel was van de aanneemovereenkomst staat namelijk vast. [gedaagden] heeft dat gesteld en [eiseres] heeft dat niet betwist. [eiseres] voert aan dat de muur achter de schouw geen onderdeel was van de aanneemovereenkomst, maar die stelling is niet relevant. Het gevorderde bedrag houdt geen verband met het (wel of niet) stuken en schilderen van die muur, maar met het (wel of niet) stuken en schilderen van de schouw.

5.133. Verder zijn partijen het erover eens dat [eiseres] de schouw niet heeft gestukt noch heeft geschilderd.

5.134. Er wordt € 90,- (en niet het gevorderde bedrag van € 750,-) toegewezen, omdat [gedaagden] bij conclusie van repliek in reconventie heeft gesteld dat het minderwerk € 90,- zou moeten bedragen (in plaats van het in eerste instantie gevorderde bedrag van € 750,-).

De post minderwerk bovenkamer rechts (Bas)

5.135. Dit gaat over de volgende post:

5.136. Naar het oordeel van de rechtbank is de vordering niet toewijsbaar.

5.137. Volgens [gedaagden] volgt uit de aanneemovereenkomst dat [eiseres] drie entresols (in drie kinderkamers) zou maken. [eiseres] heeft dat niet betwist zodat dat vaststaat.

5.138. Volgens [gedaagden] heeft [eiseres] twee entresols gemaakt (in plaats van in drie), maar dat [eiseres] in afwijking van hetgeen is overeengekomen maar twee entresols heeft gemaakt blijkt nergens uit en [eiseres] heeft dat betwist. Bovendien houdt [eiseres] ’ betwisting in dat zij in ieder geval niet akkoord was met dit minderwerk. [gedaagden] heeft ook gesteld dat de entresol in de “bovenkamer rechts” niet is gerealiseerd, maar op welke wijze uit de aanneemovereenkomst volgt dat in deze kamer een entresol zou moeten worden gerealiseerd, heeft hij niet toegelicht. In de aanneemovereenkomst worden de locaties aangeduid waar de entresols moeten komen als “3 kinderkamers”. Uit niets volgt dat hiermee ook de “bovenkamer rechts” is bedoeld. Nu er in totaal 5 slaapkamers zijn, waarvan 1 ouderslaapkamer, had het op de weg van [gedaagden] gelegen zijn stellingen nader te onderbouwen.

De post minderwerk sauna

5.139. Dit gaat over de volgende post:

5.140. Naar het oordeel van de rechtbank moet de vordering worden afgewezen.

5.141. [gedaagden] heeft deze post niet toegelicht zodat de vordering alleen al daarom wordt afgewezen.

de post minderwerk topgevel toren

5.142. Dit gaat over de volgende post:

5.143. Deze post behoeft geen behandeling aangezien [gedaagden] deze post heeft laten vallen.

de post minderwerk eiken kaders rechter zijgevel

5.144. Dit gaat over de volgende post:

5.145. Uit [gedaagden] toelichting volgt dat deze post ziet op eiken kaders die wel in de aanneemovereenkomst zijn opgenomen, maar dit niet zijn geleverd.

5.146. Naar het oordeel van de rechtbank is het deel dat ziet op het leveren van de eiken kaders (€ 2.009,40) toewijsbaar. [gedaagden] heeft gesteld en door [eiseres] is niet betwist dat het leveren van de eiken kaders in de aanneemovereenkomst was opgenomen voor een bedrag van € 2.009,40 en dat de eiken kaders niet zijn geleverd. [eiseres] heeft hiertegen het verweer gevoerd dat het bedrag is verrekend, maar deze stelling is zonder nadere toelichting die ontbreekt onnavolgbaar. [eiseres] heeft in dat kader verwezen naar productie 1 bij dagvaarding (de aanneemovereenkomst), maar daaruit valt niet zonder meer af te leiden wat [eiseres] bedoelt met de gestelde verrekening.

5.147. Naar het oordeel van de rechtbank is het andere deel (€ 1.004,70) niet toewijsbaar. [gedaagden] heeft niet toegelicht waarop hij deze vordering baseert en hoe hij het bedrag heeft begroot.

De post minderwerk potdekselgevelbekleding

5.148. Dit gaat over de volgende post:

5.149. Uit de toelichting van [gedaagden] volgt dat deze post ziet op schadevergoeding. [eiseres] zou een potdekselgevelbekleding hebben aangebracht / geleverd dat gebrekkig is. Omdat [eiseres] de gebreken weigerde te herstellen heeft [gedaagden] dat laten doen. Met deze vordering vordert hij vergoeding van deze kosten.

5.150. Naar het oordeel van de rechtbank is de vordering niet toewijsbaar, alleen al omdat het niet vaststaat dat de potdekselgevelbekleding gebrekkig is. [eiseres] heeft dat betwist en [gedaagden] heeft dat niet verder onderbouwd.

tussenconclusie

5.151. Uit het voorgaande volgt dat van het gevorderde minderwerk in totaal € 8.985,- wordt toegewezen, bestaande uit € 6.885,60 voor de niet geleverde / aangebrachte tegels en dorpels, € 90,- voor het niet stuken / schilderen van de schouw en € 2.009,40 voor de niet geleverde eiken kaders. Voor het overige wordt de vordering voor minderwerk afgewezen.

Eindconclusie over de geldelijke vorderingen over en weer

5.152. Zoals hiervoor weergegeven is [gedaagden] aan [eiseres] nog € 7.170,04 verschuldigd in verband met openstaande facturen. Daar staat tegenover dat [eiseres] nog € 8.985,- verschuldigd is aan [gedaagden] in verband met minderwerk. [gedaagden] heeft aangegeven zijn vordering te willen verrekenen. Dat [gedaagden] daartoe niet bevoegd zou zijn, is gesteld noch gebleken. Dit betekent dat [eiseres] nog € 1.814,96 nog verschuldigd is. Dit bedrag zal dan ook worden toegewezen. Ook de wettelijke rente hierover zal worden toegewezen zoals gevorderd.

de niet geldelijke vorderingen in reconventie

5.153. [gedaagden] heeft naast zijn vorderingen tot betaling voor minderwerk, ook een aantal vorderingen tot het verrichten van (herstel)werkzaamheden ingesteld. Deze worden hierna puntsgewijs behandeld, nadat eerst een algemeen verweer is behandeld.

Verjaring

5.154. Het meest verstrekkende verweer van [eiseres] is dat de rechtsvorderingen van [gedaagden] zijn verjaard. Dit verweer wordt als eerste behandeld.

5.155. Volgens [eiseres] zijn de rechtsvorderingen verjaard, omdat deze gebaseerd zijn op klachten in het opgeleverde werk, [gedaagden] aan deze klachten heeft gerefereerd in zijn brief van 28 november 2018 en vervolgens meer dan twee jaar later eraan heeft gerefereerd, in zijn conclusie van antwoord in reconventie van 17 maart 2021. Op grond van artikel 7:761 lid 1 BW verjaren rechtsvorderingen ter zake van gebreken in het afgeleverde werk na twee jaar, zodat de rechtsvorderingen van [gedaagden] (die verband houden met de gebreken) zijn verjaard. [gedaagden] heeft de verjaring niet gestuit met zijn e-mail van 22 november 2019, aldus [eiseres] .

5.156. [eiseres] voert hiertegen aan dat de verjaring is gestuit met de e-mail van 22 november 2019. De termijn (van twee jaar) is daarom op 22 november 2019 weer gaan lopen.

5.157. De rechtbank overweegt als volgt.

5.158. Niet in geschil is dat [gedaagden] in zijn brief van 28 november 2018 uitgebreid heeft toegelicht op welke punten hij meende dat [eiseres] was tekortgeschoten en dat hij daarin heeft aangegeven dat hij (alsnog) nakoming verlangde, zodat de verjaringstermijn in is aangevangen / gestuit op 28 november 2018.

5.159. De vraag of de vorderingen van [gedaagden] zijn verjaard draait in de kern om de vraag of de verjaring – nogmaals – is gestuit met de e-mail van 22 november 2019, waarin wordt gezegd:

“Cliënten zien thans geen aanleiding inhoudelijk te reageren op alle punten uit uw brief [van 22 oktober 2019, toevoeging rechtbank]. Ter zake – en overigens – behouden cliënten zich alle rechten en weren voor.

Wel reageer ik hierbij namens cliënten op de afsluiting van uw brief, waarin u een procedure aankondigt en een forumkeuze aan cliënt voorlegt. Cliënten stemmen niet in met arbitrage bij de Raad van Arbitrage.”

5.160. Partijen zijn het over de stuitende werking van deze brief niet eens.

5.161. Volgens artikel 3:317 BW lid 1 vindt stuiting (onder andere) plaats door een schriftelijke mededeling waarin de schuldeiser zich ondubbelzinnig zijn recht op nakoming voorbehoudt. In de jurisprudentie is dit verder als volgt nader toegelicht:

“De verjaring van een rechtsvordering tot nakoming van een verbintenis kan onder meer worden gestuit door een schriftelijke mededeling waarin de schuldeiser zich ondubbelzinnig zijn recht op nakoming voorbehoudt (art. 3:317 lid 1 BW). Deze schriftelijke mededeling moet een voldoende duidelijke waarschuwing aan de schuldenaar inhouden dat hij, ook na het verstrijken van de verjaringstermijn, rekening ermee moet houden dat hij de beschikking houdt over zijn gegevens en bewijsmateriaal, opdat hij zich tegen een dan mogelijkerwijs alsnog door de schuldeiser ingestelde vordering behoorlijk kan verweren (vgl. HR 24 november 2006, ECLI:NL:HR:2006:AZ0418, NJ 2006/642). Bij de beoordeling of de mededeling aan de in art. 3:317 lid 1 BW gestelde eisen voldoet, dient niet alleen te worden gelet op de formulering daarvan, maar ook op de context waarin de mededeling wordt gedaan en op de overige omstandigheden van het geval (vgl. HR 18 september 2009, ECLI:NL:HR:2009:BI8502, NJ 2009/439). Bij deze beoordeling kan onder omstandigheden mede betekenis toekomen aan de verdere correspondentie tussen partijen (HR 28 oktober 2011, ECLI:NL:HR:2011:BQ7063, NJ 2011/503).”n

HR 18 september 2015, ECLI:NL:HR:2015:2741 (https://www.navigator.nl/document/idb6f20f62553347078087cfcf46f3048a?anchor=id-1cda9335-715d-429f-a53a-98aea2e5a335), NJ 2015/382 (https://www.navigator.nl/document/idc8206a3c24fe4b509670857ba80b3e8d), r.o. 3.3.

(onderstrepingen rechtbank)

5.162. Deze maatstaf in acht nemend is de rechtbank van oordeel dat de e-mail van 9 november 2019 stuitende werking heeft. De e-mail bevat immers een voldoende duidelijke waarschuwing aan [eiseres] dat [gedaagden] zijn rechten op nakoming voorbehoudt. De woorden “behouden […] zich alle rechten en weren voor” uit de e-mail duiden er namelijk op dat [gedaagden] nu en in de toekomst aanspraak wil blijven maken op de rechten die zij op dat moment had. Verder duidt het feit dat de e-mail een reactie is op de brief van [eiseres] van 22 oktober 2019 die weer een reactie was op de brief van [gedaagden] van 28 november 2018 erop dat de rechten die werden voorbehouden dezelfde waren als de rechten waar het in de brieven van 22 oktober 2019 en 28 november 2018 over ging. Het moet [eiseres] duidelijk zijn geweest op welke rechtsvorderingen de e-mail van 9 november 2019 betrekking had. [eiseres] heeft er nog op gewezen dat de e-mail van 9 november 2019 zeer kort is, maar gezien de al uitvoerige beschrijving van de klachten door [gedaagden] in zijn brief van 28 november 2018 behoeft van [gedaagden] niet te worden verwacht dat hij die nogmaals zou herhalen. Dat geldt des te meer, omdat [eiseres] in haar brief van 9 oktober 2019 had aangekondigd een procedure te beginnen als [gedaagden] niet zou voldoen aan de sommatie. Beide partijen wisten dus dat de standpunten weer aan de orde zouden komen in een procedure als [gedaagden] niet voldeed aan de sommatie (hetgeen [gedaagden] in zijn e-mail van 22 november 2019 in feite aankondigde niet te doen). Ook in dat licht hoefde [eiseres] niet hoefde te verwachten dat [gedaagden] nogmaals alles uit zou werken.

5.163. Op grond van het voorgaande slaagt het verweer dat rechtsvorderingen zijn verjaard, niet.

Het aanpassen van de draairichting van de harmonicadeur

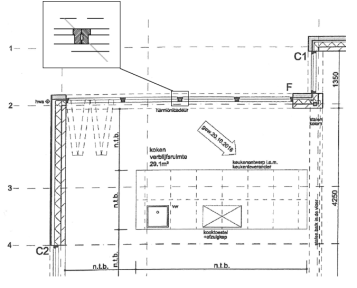
5.164. [gedaagden] vordert dat [eiseres] een harmonicadeur aanpast in de zin dat deze voortaan naar binnen draait, in plaats van naar buiten. Hij legt hieraan ten grondslag dat partijen zijn overeengekomen dat [eiseres] een harmonicadeur zou plaatsen die naar binnen zou draaien.

5.165. Volgens [eiseres] moet de vordering worden afgewezen. [eiseres] ’ meest verstrekkende verweer (naast het hiervoor behandelde verjaringsverweer) tegen deze vordering is dat [gedaagden] te laat heeft geklaagd over het feit dat de harmonicadeur de verkeerde kant op draaide. Verder zijn partijen volgens haar overeengekomen dat de harmonicadeur naar buiten zou draaien, althans zij betwist dat partijen zijn overeengekomen dat de harmonicadeur naar binnen zou draaien.

5.166. De rechtbank overweegt als volgt.

5.167. Wat betreft de gestelde schending van de klachtplicht geldt het volgende. De klachtplicht is neergelegd in artikel 6:89 BW. Hieruit volgt dat een schuldeiser (in dit geval: [gedaagden] ) op een gebrek in de prestatie (in dit geval: de gestelde verkeerde draairichting) geen beroep meer kan doen, indien de schuldeiser niet binnen bekwame tijd nadat bij het gebrek heeft ontdekt of redelijkerwijs had moeten ontdekken, bij de schuldenaar (in dit geval: [eiseres] ) hierover heeft geprotesteerd. Uit de jurisprudentie volgt dat als het verweer is gevoerd dat niet tijdig is geklaagd (1) de schuldeiser de steplicht en de bewijslast draagt van het moment waarop is geklaagd en (2) de schuldenaar de stelplicht en de bewijslast draagt van het moment wanneer de schuldeiser het gebrek heeft ontdekt (of zodanige omstandigheden waaruit volgt dat de schuldeiser het gebrek redelijkerwijs had moeten ontdekken)n

HR 12 december 2014, NJ 2017/163, m.nt. Asser (Far Trading/Edco).

.

5.168. Het staat vast dat [gedaagden] in ieder geval per e-mail van 19 december 2017 heeft geklaagd. [gedaagden] heeft ook gesteld dat hij eerder heeft geklaagd, maar dat heeft [eiseres] betwist en blijkt nergens uit.

5.169. Het staat verder vast dat [gedaagden] op 16 november 2017 heeft geconstateerd dat de harmonicadeur naar buiten draaide. Dat blijkt uit het volgende screenshot uit een app gesprek tussen gedaagden onderling:

Dit screenshot suggereert bovendien dat gedaagden beiden op 16 november 2017 verbaasd waren over het naar buiten draaien van de harmonicadeur.

5.170. [eiseres] heeft hiertegenover gesteld dat [gedaagden] eerder heeft ontdekt (althans eerder had moeten ontdekken) dat de harmonicadeur naar buiten draaide, maar dat heeft [gedaagden] betwist en daarvoor heeft [eiseres] onvoldoende gesteld. [eiseres] heeft ter onderbouwing van haar standpunt de volgende screenshot overgelegd van berichten van 20 juni 2017 uit een Whatsapp groep tussen (kennelijk) ieder van gedaagden en de bestuurder van [eiseres] :

5.171. Dit screenshot onderbouwt echter niet dat [gedaagden] op 20 juni 2017 ontdekt had (althans had moeten ontdekken) dat de harmonicadeur naar buiten draaide. Zo is niet te zien dat de berichten gaan over de harmonicadeur en ook is het niet duidelijk waaruit volgt dat [gedaagden] wist (of had moeten ontdekken) dat de deur naar buiten draaide.

5.172. Aangezien [gedaagden] het naar buiten draaien heeft ontdekt op 16 november 2017 en hij hierover op 19 december 2017 heeft geklaagd is de rechtbank van oordeel dat hij tijdig heeft geklaagd. Het tijdsverloop tussen beide tijdstippen is met een ruime maand immers redelijk beperkt. Verder volgt uit het gestelde niet dat (en waarom) een kortere periode dan een ruime maand in acht had moeten worden gehouden. De conclusie is dan ook dat de klachtplicht wat betreft de harmonicadeur niet is geschonden.

5.173. Wat betreft de andere verweren tegen de vordering van [gedaagden] tot het aanpassen van de harmonicadeur geldt het volgende.

5.174. Het is niet in geschil dat partijen zijn overeengekomen dat [eiseres] de harmonicadeur zou plaatsen. Partijen zijn het niet eens over de vraag wat zij wat betreft de draairichting zijn overeengekomen.

5.175. Over de vraag wat partijen zijn overeengekomen geldt de volgende maatstaf. Een overeenkomst komt tot stand door een aanbod en de aanvaarding daarvan (artikel 6:215 lid 1 BW). Of sprake is van overeenstemming tussen het aanbod en de aanvaarding (en dus of en wat zij wat betreft de draairichting zijn overeengekomen) hangt af van wat partijen hebben verklaard en uit elkaars verklaringen en gedragingen hebben afgeleid, overeenkomstig de zin die zij daaraan in de gegeven omstandigheden redelijkerwijs mochten toekennen (artikelen 3:33 en 3:35 BW). Bij deze beoordeling moet rekening worden gehouden met alle relevante omstandigheden van het geval.

5.176. In het licht van deze maatstaf is de rechtbank van oordeel dat partijen – in ieder geval in eerste instantie – zijn overeengekomen dat de harmonicadeur naar binnen zou draaien.

5.177. Niet is betwist dat de bestektekening (productie 25 conclusie van antwoord) en de werktekening (productie 26 conclusie van antwoord) de basis vormden was van hetgeen [eiseres] moest opleveren. [gedaagden] heeft dit gesteld en dat heeft [eiseres] niet betwist. Verder heeft [gedaagden] gesteld (en dat heeft [eiseres] ook niet betwist) dat de bestektekening bij iedere bijeenkomst tussen [gedaagden] en [eiseres] als tekening werd gebruikt op basis waarvan de gesprekken werden gevoerd. Ook heeft [gedaagden] gesteld (en het is niet betwist) dat de werktekening geplastificeerd in de keet op de bouwplaats hing.

5.178. Op de bestektekening en op de werktekening is de harmonicadeur als naar binnen draaiend getekend. Dat blijkt uit de W in stippellijn:

5.179. [eiseres] heeft aangevoerd dat de tekening waarop de W te zien is slechts een concept was en dat uit het feit dat dit slechts een concept was nog niet volgt dat partijen over de draairichting een afspraak hadden gemaakt. Dat de tekening slechts een concept was volgt, aldus [eiseres] , uit de omstandigheden (1) dat de W slechts in stippellijnen is gemarkeerd, (2) dat op de tekening tevens vaste deurlijsten te zien zijn en (3) in een ander deel van de tekening blijkt de draairichting niet is aangegeven.

De vaste deurlijsten zijn te zien aan de kleine blokjes bovenaan, op de tekening:

Het andere deel van de bestek- en werktekening waar de draairichting niet is aangegeven betreft dit deel (waarop bij de vier ramen bij F geen draairichting door middel van een X is aangegeven):

5.180. De rechtbank overweegt wat dit betreft als volgt. Dat de bestek- en werktekening wat betreft de harmonicadeur slechts concepten waren (als dit al juist zou zijn), betekent niet dat deze tekeningen niet van belang zijn bij het bepalen van hetgeen partijen zijn overeengekomen. Juist omdat partijen over de draairichting niets uitdrukkelijk hebben vermeld, kan hetgeen wel is vermeld relevant zijn bij het bepalen van wat partijen over en weer mochten verwachten en dat is, zoals uit de hiervoor weergegeven maatstaf blijkt, bepalend voor hetgeen partijen zijn overeengekomen. Omdat [gedaagden] en [eiseres] de (concept) bestek- en werktekeningen hebben gedeeld en als basis hebben gebruikt voor onderlinge gesprekken zijn zij relevant voor hetgeen partijen van elkaar mochten verwachten.

5.181. Overigens is de rechtbank van oordeel dat uit geen van de door [eiseres] aangevoerde feiten volgt dat de bestek- en werktekening wat betreft de harmonicadeur slechts een concept was, althans dat [gedaagden] de tekeningen aldus moest opvatten. Het feit dat de W in stippellijn was getekend, kon er immers ook op duiden dat de deur onder omstandigheden er zo uit kon zien (omdat een draaideur een bewegend onderdeel is). Wat betreft de vaste deurlijsten geldt dat deze kennelijk inconsistent zijn met een harmonicadeur, maar het feit dat een tekening een inconsistentie bevat betekent nog niet dat de tekening een concept is. Verder kon van [gedaagden] niet worden verwacht dat hem de inconsistentie van de vaste deurlijsten met een harmonicadeur zou opvallen, gezien de grootte van de op de tekening zichtbare deurlijsten. Dat in een ander deel van de werk- en bestektekening de draairichting van de harmonicadeur niet was aangegeven kan diverse redenen hebben. Daaruit hoefde [gedaagden] ook niet af te leiden dat het deel van de werk- en bestektekening waar de draairichting wel was aangegeven slechts een concept was.

5.182. Omdat op de werk- en bestektekening de harmonicadeur als naar binnen draaiend is weergegeven (door middel van de W in stippellijn) is de rechtbank van oordeel dat partijen oorspronkelijk zijn overeengekomen dat de harmonicadeur naar binnen zou draaien.

5.183. De rechtbank is verder van oordeel dat partijen nadien geen wijziging van de draairichting zijn overeengekomen.

5.184. [eiseres] heeft erop gewezen dat zij en [gedaagden] , nadat de bestek- en werktekeningen in gebruik waren genomen, op 21 oktober 2016 overleg hebben gehad over de ramen, waaronder de harmonicadeur. Mede naar aanleiding daarvan heeft [eiseres] op 22 oktober 2016 nauwkeurigere tekeningen van de ramen, waaronder de harmonicadeur, per e-mail gestuurd. De tekening van de harmonicadeur bevatte een doorgetrokken streep. Zoals [eiseres] onbetwist heeft gesteld betekent een doorgetrokken streep dat een deur naar buiten draait. Het gaat om de volgende tekening:

5.185. [gedaagden] heeft opmerkingen gemaakt op de tekeningen van de ramen, maar niet op de draairichting van de harmonicadeur, zodat daaruit volgt dat [gedaagden] akkoord was met de draairichting zoals die uit die tekening blijkt, aldus [eiseres] .

5.186. Naar het oordeel van de rechtbank mocht [eiseres] uit de omstandigheden dat zij een tekening met een doorgetrokken streep had gedeeld met [gedaagden] en [gedaagden] op de doorgetrokken streep geen opmerking had gemaakt nog niet afleiden dat [gedaagden] akkoord was met een draairichting van de harmonicadeur naar buiten. Het verplaatsen van de draairichting van binnen naar buiten zou immers een belangrijke wijziging betekenen ten opzichte van hetgeen uit de bestek- en werktekening bleek, zodat [gedaagden] mocht verwachten dat [eiseres] daar uitdrukkelijk op zou wijzen. Dat heeft [eiseres] niet gedaan. Het sturen van een tekening van een raam met een doorgetrokken streep zonder nadere toelichting kwalificeert in ieder geval niet als een dergelijke uitdrukkelijke vingerwijzing. Dit geldt zeker, omdat [eiseres] niet van [gedaagden] (als consument en leek) mocht verwachten dat hij wist wat een doorgetrokken streep betekenende en de betekenis daarvan ook niet zonder meer uit de tekening blijkt. Zoals [gedaagden] onbetwist heeft gesteld, wist [gedaagden] ook niet dat een doorgetrokken streep betekende dat de harmonicadeur naar buiten draaide. Verder nam de streep ook geen bijzondere plek op de tekening in, zodat [eiseres] ook niet mocht verwachten dat [gedaagden] een opmerking over de streep zou maken als hij het daar niet mee eens was of daarover vragen had.

Dat [gedaagden] deels werd bijgestaan door een architect maakt dit niet anders. Niet is gebleken dat de architect naar de tekeningen heeft gekeken, laat staan dat hij ze heeft goedgekeurd. [eiseres] heeft erop gewezen dat de tekeningen ook per e-mail aan de architect zijn gestuurd, maar dat hij erop een reactie van de architect heeft gekregen, is niet gesteld. Voor zover [eiseres] heeft willen betogen dat hij redelijkerwijs mocht verwachten dat de architect naar de tekeningen had gekeken, gaat de rechtbank daar niet in mee. Weliswaar is de architect betrokken geweest bij de bouw, maar [gedaagden] heeft onbetwist gesteld dat hij en de architect al snel na de start van de werkzaamheden een geschil hadden zodat de architect niet meer bij de bouw betrokken was. Uit het gestelde blijkt dat de architect op 21 oktober 2016 niet meer betrokken was bij de bouw. Partijen hebben immers overleg gehad op 21 oktober 2016 over de ramen, waaronder de harmonicadeur, en niet is gesteld dat de architect daarbij aanwezig was. Verder heeft de architect ook niet gereageerd op de e-mail met de tekeningen.

5.187. [eiseres] heeft verder betoogd dat partijen tijdens een overleg op 21 oktober 2016 mondeling hebben afgesproken dat de harmonicadeur naar buiten zou draaien. [gedaagden] heeft echter betwist dat de draairichting is besproken. Verder blijkt de gestelde mondelinge afspraak nergens uit.

5.188. [eiseres] heeft gesteld dat het overleg heeft plaatsgevonden bij de broer van de bestuurder van [eiseres] en dat deze broer een harmonicadeur had die ook open heeft gestaan en naar buiten draaide en dat [gedaagden] is gewezen op de harmonicadeur, maar uit deze feiten (als zij al waar zijn - [gedaagden] betwist dat de deur van de broer open heeft gestaan) mocht [eiseres] niet zonder meer afleiden dat [gedaagden] akkoord was met een draairichting naar buiten.

5.189. De vordering tot het aanpassen van de draairichting van de harmonicadeur zal op grond van het voorgaande worden toegewezen. Wel wordt in plaats van de gevorderde termijn van 30 dagen waarbinnen de draairichting moet zijn aangepast een termijn van 90 dagen aangehouden, in verband met de periode waarin het vonnis wordt gewezen (in de winter(vakantie)) en de huidige tekorten aan personeel en onderdelen.

5.190. [eiseres] heeft een beroep gedaan op eigen schuld van [gedaagden] . Eigen schuld is geen reden om de vordering niet toe te wijzen, omdat eigen schuld een rol speelt bij de bepaling van de hoogte van schadevergoeding, terwijl in dit geval geen schadevergoeding (maar nakoming) wordt gevorderd. Verder is de stelling dat er sprake is van eigen schuld in feite gebaseerd op het betoog dat te laat is geklaagd, maar zoals hiervoor is aangegeven, is de rechtbank van oordeel dat er niet te laat is geklaagd.

Het aanpassen van de draai-kiepdeur van het Frans balkon

5.191. [gedaagden] vordert dat [eiseres] een draai-kiepdeur van het Frans balkon van de ‘master bedroom’ aanpast zodat de draai-kiepdeur deugdelijk sluit. Hij legt hieraan ten grondslag dat [eiseres] de draai-kiepdeur heeft geplaatst, maar dat de deur niet deugdelijk sluit. Hij heeft hierover geklaagd bij het afleveren van de sleutels, maar het gebrek is niet hersteld.

5.192. Naar het oordeel van de rechtbank moet de vordering worden toegewezen.

5.193. Het is niet in geschil dat de draai-kiepdeur onderdeel was van de aanneemovereenkomst en dat [eiseres] zodoende een deugdelijk sluitende draai-kiepdeur moest maken.

5.194. Anders dan [eiseres] betoogt is de rechtbank van oordeel dat [gedaagden] over het gebrek aan de draai-kiepdeur in de master bedroom tijdig heeft geklaagd. In de e-mail van 19 december 2017 van [gedaagden] staat immers ook als opleverpunt vermeld “Klemmen verhelpen en zorgen dat handvat zonder kracht dicht kan, Master bedroom achterdeuren”.

5.195. Naar het oordeel van de rechtbank staat verder vast dat de draai-kiepdeur nu niet goed sluit. Hiervoor geciteerde e-mail suggereert in ieder geval dat dit het geval was in 2017. [eiseres] erkent verder dat zij in mei/juni 2018 herstelwerkzaamheden aan het hang- en sluitwerk heeft verricht. Ook dat duidt erop dat er in ieder geval gebreken waren.

5.196. [eiseres] stelt dat zij de gebreken deugdelijk heeft hersteld, maar dat blijkt nergens uit en [gedaagden] betwist dat in feite met zijn stelling. In zijn brief van 28 november 2018 wijst [gedaagden] bovendien op het niet deugdelijk sluiten van hang- en sluitwerk. Dat is nadat het herstel is geweest en duidt er dus op dat het herstel in ieder geval in de ogen van [gedaagden] niet (geheel) deugdelijk was. Dat het gebrek aan de draai-kiepdeur in de master bedroom deugdelijk is hersteld, staat dan ook niet vast.

5.197. De door [gedaagden] gevorderde dwangsom wordt gematigd, zoals vermeld in de beslissing.

Het herstellen van waterschade aan het schilderwerk bij de voordeur

5.198. [gedaagden] vordert dat [eiseres] waterschade aan schilderwerk bij de voordeur herstelt.

5.199. Naar het oordeel van de rechtbank moet de vordering worden afgewezen.

5.200. Dat de gestelde schade het gevolg is van gebreken in het werk van [eiseres] heeft [eiseres] betwist en blijkt nergens uit. Volgens [gedaagden] is in het zinkwerk een lekkage ontstaan met waterschade (aan het stuk-/schilderwerk bij de voordeur) tot gevolg, maar dat het zinkwerk heeft gelekt en schade heeft veroorzaakt blijkt nergens uit. [gedaagden] verwijst ter onderbouwing van zijn stelling naar de volgende vermelding op een opleverformulier van 15 mei 2018:

Lekkage:

22.

Recht naast voordeur en studeerkamer oplossen

Goot gerepareerd

[handtekening, wijziging rechtbank]

5.201. Hieruit blijkt echter niet dat er schade is ontstaan aan de voordeur door zinkwerk.

5.202. Het kan [gedaagden] worden toegegeven dat de geciteerde vermelding op het opleverformulier van 15 mei 2018 erop duidt dat er in ieder geval een lekkage is geweest die gevolgen heeft gehad voor het werk recht naast de voordeur. De vermelding spreek immers over een “lekkage” en “recht naast voordeur”. Partijen zijn het er echter over eens dat er (in ieder geval) (ook) een lekkage is geweest die verband hield met het straatwerk die gevolgen had voor het werk bij de voordeur. De passage “Goot gerepareerd” in het geciteerde vermelding op het opleverformulier van 15 mei 2018 suggereert dat het eerder gaat om deze (andere) lekkage.

Het herstellen van optrekkend vocht in de garage

5.203. Een vordering tot het verrichten van herstelwerkzaamheden in verband met optrekkend vocht in de garage is niet meer aan de orde. [gedaagden] erkent bij conclusie van repliek dat er geen optrekkend vocht (meer) is.

Het aanpassen van de WTW-installatie

5.204. [gedaagden] vordert dat [eiseres] de WTW-installatie aanpast, zodat deze geschikt is voor volledige communicatie met de KNX-module.

5.205. Naar het oordeel van de rechtbank moet de vordering worden afgewezen.

5.206. [gedaagden] heeft niet duidelijk gemaakt op welke juridische grondslag hij zijn vordering stoelt.

5.207. Voor zover [gedaagden] zijn vordering stoelt op nakoming (artikel 3:296 BW) staat niet vast dat partijen zijn overeengekomen dat [eiseres] een WTW-installatie zou aanpassen naar een WTW-installatie die geschikt is voor volledige communicatie met de KNX-module.

5.208. Voor zover [gedaagden] zijn vordering stoelt op wanprestatie (artikel 6:74 BW) en schadevergoeding in natura (artikel 6:103 BW) geldt het volgende. Het staat vast dat twee andere WTW-installaties zijn geïnstalleerd (de Comfo Air E) dan die waren overeengekomen (een Comfo Air Q). Daarmee is [eiseres] tekortgeschoten. [gedaagden] heeft echter niet verduidelijkt dat en welke schade hij hierdoor heeft geleden. Uit [gedaagden] stellingen volgt dat het verschil tussen beide WTW-installaties is dat de geïnstalleerde installatie (de Comfo Air E) in beginsel niet geschikt is voor communicatie met de KNX-module en dat de bestelde installatie (de Comfo Air Q) daarvoor wel is geschikt, maar het is ook niet betwist dat (een installateur namens) [eiseres] een custom-made koppeling heeft gemaakt waardoor ook de geïnstalleerde module (de Comfo Air E) communiceert met de KNX-module. Wat er echter nu nog ontbreekt heeft [gedaagden] niet verduidelijkt. [gedaagden] stelling dat er “is ingeleverd op functionaliteit en type techniek” is onvoldoende concreet. Ook [gedaagden] formulering van de vordering (“aanpassing van de WTW-installatie dat deze geschikt is voor volledige communicatie met de KNX-module”) is onvoldoende concreet.

Het herstellen van de lekkages in de lichtstraat en van de schade aan de parketvloer

5.209. [gedaagden] vordert dat [eiseres] lekkages in de lichtstraat herstelt, alsook dat zij schade aan de parketvloer herstelt.

5.210. Naar het oordeel van de rechtbank moeten de vorderingen worden afgewezen.

5.211. De vorderingen veronderstellen dat de lichtstraat lekt en dat die lekkage de schade aan de parketvloer heeft veroorzaakt, maar dat de lichtstraat lekt staat niet vast. [eiseres] heeft dat betwist. [eiseres] heeft ter onderbouwing van haar stelling gewezen op de volgende foto’s:

Uit deze foto’s blijkt echter niet dat de lichtstraat lekt. Overige feiten waaruit zou volgen dat de lichtstraat lekt, zijn niet gesteld.

5.212. [gedaagden] heeft aangeboden zijn stelling te bewijzen door middel van (het horen van) een deskundige. Hieraan wordt echter niet toegekomen, omdat [gedaagden] daarvoor onvoldoende heeft gesteld.

De kosten van het aanbrengen van sneldrogend cement

5.213. [gedaagden] heeft € 834,90 betaald voor het leggen van een sneldrogende cementvloer. Hij vordert vergoeding van deze kosten door [eiseres] .

5.214. Volgens [gedaagden] is [eiseres] gehouden de kosten van het leggen van de sneldrogende cementvloer te vergoeden, omdat [eiseres] niet op tijd een cementvloer heeft aangelegd / laten aanleggen, zodat daarna een parketvloer kon worden gelegd. [gedaagden] heeft daarom zelf een sneldrogende cementvloer laten leggen.

5.215. Naar het oordeel van de rechtbank moet deze vordering worden afgewezen.

5.216. De vordering van [gedaagden] vordering veronderstelt dat partijen een afspraak hebben gemaakt over een tijdstip waarom de cementvloer zou moeten zijn gelegd en droog zou moeten zijn. Dat partijen een dergelijke afspraak hebben gemaakt is echter betwist en blijkt nergens uit. [gedaagden] heeft ter onderbouwing verwezen naar de volgende apps:

5.217. Uit deze apps blijkt echter niet dat partijen een afspraak hebben gemaakt over wanneer de cementvloer zou moeten zijn gelegd en droog zou moeten zijn. De vraag die (namens [gedaagden] ) gesteld wordt en waarop [eiseres] antwoordt, gaat over het dichten van een ‘gat’ in de vloer, niet over een datum/tijdstip waarop de cementvloer moet zijn gelegd / droog moet zijn.

Dwangsommen

5.218. [gedaagden] vordert [eiseres] te veroordelen tot betaling van dwangsommen, voor zover de hiervoor genoemde gevorderde (herstel)werkzaamheden niet worden verricht.

Aan de gevorderde dwangsommen zal een maximum en een matigingsbevoegdheid van de hierna te melden inhoud worden verbonden.

de proceskosten in conventie en in reconventie

5.219. [eiseres] krijgt in conventie ongelijk. De eindconclusie is immers dat haar vordering wordt afgewezen (omdat zij meer moet betalen aan [gedaagden] dan andersom). [eiseres] wordt dan ook veroordeeld in de proceskosten. Deze worden begroot op € 4.279,-, bestaande uit € 937,- aan griffierecht en € 3.342,- aan salaris advocaat (3 punten x tarief van € 1.114,- per punt).

5.220. [eiseres] krijgt ook in reconventie ongelijk. Hoewel niet alle vorderingen van [gedaagden] in reconventie worden toegewezen wordt toch een substantieel deel toegewezen. Ook in reconventie wordt [eiseres] veroordeeld in de proceskosten. Deze worden begroot op € 1.689,- aan salaris advocaat (3 punten x tarief van € 563,- per punt). Voor het liquidatietarief is aangesloten bij het tarief dat geldt voor vorderingen met betrekking tot zaken van onbepaalde waarde (en niet bij het tarief voor vorderingen tussen de € 20.000,- en € 40.000,-), omdat is gebleken dat [gedaagden] onnodig meer dan € 20.000,- heeft gevorderd.

De beslissing

De rechtbank

in conventie

6.1.wijst het gevorderde af,

6.2.veroordeelt [eiseres] in de proceskosten aan de zijde van [gedaagden] begroot op € 4.279,-,

in reconventie

6.3.veroordeelt [eiseres] om binnen 90 dagen na betekening van dit vonnis zorg te dragen voor aanpassing van de draairichting van de harmonicadeur, zodanig dat deze naar binnen in plaats van naar buiten draait, naar de eisen van goed en deugdelijk vakmanschap, op straffe van een dwangsom van € 75,- per dag of dagdeel dat niet aan deze veroordeling wordt voldaan, tot een maximum van € 25.000,-,

6.4.veroordeelt [eiseres] om binnen 30 dagen na betekening van dit vonnis zorg te dragen voor het alsnog deugdelijk sluitend maken van de draai-kiepdeur van het Frans balkon van de ‘master bedroom’, naar de eisen van goed en deugdelijk vakmanschap, op straffe van een dwangsom van € 25,- per dag of dagdeel tot een maximum van € 300,-,

6.5.bepaalt dat geen dwangsom zal worden verbeurd voor zover dit naar maatstaven van redelijkheid en billijkheid onaanvaardbaar moet worden geacht, (mede) gelet op de mate van verwijtbaarheid van de overtreding,

6.6.veroordeelt [eiseres] tot betaling van € 1.814,96, te vermeerderen met de wettelijke rente in de zin van artikel 6:119 BW hierover vanaf de dag van de conclusie van antwoord in reconventie tot aan de dag van volledige betaling,

6.7.veroordeelt [eiseres] in de proceskosten aan de zijde van [gedaagden] begroot op € 1.689,-,

6.8.wijst het gevorderde voor het overige af.

Dit vonnis is gewezen door mr. N.W.A. Stegeman-Kragting en in het openbaar uitgesproken op 4 januari 2023.n

type: MR

coll:

Artikel delen